













About This Property
Discover what makes this home specialThe Bargower semi-detached home at plot 80 in Edinburgh offers an ideal blend of spacious family living and modern convenience. With four well-proportioned bedrooms including a master with en-suite, and three bathrooms in total, this property caters perfectly to growing families or those needing flexible space such as a study or guest room. The ground floor boasts a large open-plan kitchen, family, and dining area that opens onto a private patio, creating a seamless indoor-outdoor living experience. A separate lounge provides a cozy retreat, while the integral garage adds practical storage and parking solutions.
Situated in the desirable OX2 8PQ area, this home benefits from excellent natural light with a south-west facing garden that enjoys approximately eight hours of sunlight during summer days. The location combines peaceful residential charm with easy access to local amenities, schools, and transport links, making it a highly sought-after address for both homeowners and investors.
Property Features
This property excels in providing versatile living spaces with a large open-plan kitchen, family, and dining area that is perfect for modern lifestyles. The integral garage offers convenience and security for vehicles and storage. The master bedroom benefits from an en-suite bathroom, enhancing privacy and comfort. Additional features such as a cloakroom on the ground floor and multiple storage cupboards throughout add to the practicality of the home. The south-west facing garden and patio create a bright, welcoming outdoor space ideal for relaxation and entertaining.
Local Amenities
Located in the OX2 8PQ area, this property is well served by excellent educational institutions including Oxford High School and Cherwell School, both highly regarded in the region. Transport links are strong with Oxford Parkway and Oxford mainline stations providing direct access to London and other major cities, complemented by nearby Thornhill Park and Ride for convenient commuting. Local amenities such as Tesco Superstore and the premium shopping destination Bicester Village offer extensive retail and dining options. For outdoor leisure, residents can enjoy nearby green spaces like Cutteslowe Park, perfect for families and outdoor enthusiasts.
Estimate Calculator
Mortgage Calculator
Purchase Costs
Monthly Costs & Income
Mortgage Calculator
Purchase Costs
Monthly Costs
International Suitability
Excellent OpportunityInternational Buyer Calculator
Purchase Costs (Non-UK Resident)
Monthly Costs & Income
Key Considerations for International Buyers
Investment Analytics
Key metrics for investors & buyersProperty Value Projection
Based on 1.6% annual growthMonthly Rental Income
Based on 3.5% annual growthFloorplans
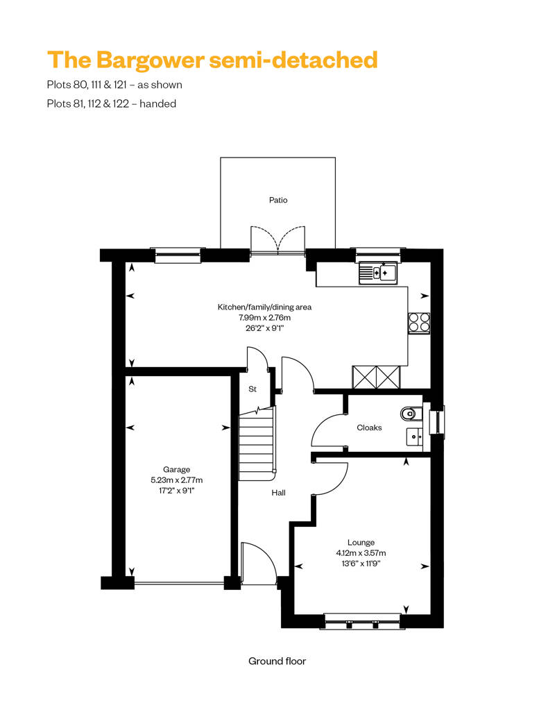
Ground Floor

Ground Floor
First FloorSite Plan
Location
Commute Time Planner
Sun Path & Natural LightAI generated - Estimated
Room-by-Room Light Analysis
Location Scores
Future Developments Nearby
Loading location insights...
Similar Properties
Explore More
Latest Insights & Guides
Expert advice on buying new build homes, market trends, and property investment
New Build Homes in Manchester: Area-by-Area Guide to Prices, Regeneration, and Where to Buy in 2026
The complete guide to buying a new build home in Manchester and Greater Manchester. Area-by-area prices, regeneration ho...
Read moreHow to Compare Mortgage Lenders for a New Build: Reading ESIS Documents, True Cost Calculations, Broker vs Direct, New Build Specialist Lenders, and Getting the Best Deal
Practical guide to comparing mortgage lenders for new build homes in the UK. Learn to read ESIS documents, calculate tru...
Read moreCommon External Works Snagging on New Build Developments
External works defects on new build developments affect every homeowner on the estate. From unfinished pavements and bro...
Read more

