
















About This Property
Discover what makes this home specialRowan, Number 1 is a beautifully designed three-bedroom, three-bathroom house located in a vibrant and well-connected area of Cambridge. Priced at £965,000, this property offers a modern open-plan kitchen, dining, and living space that opens onto a terrace, perfect for entertaining and family living. The upstairs features two well-proportioned bedrooms, a family bathroom, and a balcony that overlooks the communal green space, while the ground floor includes a convenient WC and utility area. The property benefits from a bin store and access to communal gardens, providing a blend of private and community living.
Property Features
This property boasts a spacious open-plan living area that maximizes natural light and flow, complemented by outdoor terrace and balcony spaces. The inclusion of three bathrooms, including a downstairs WC, adds convenience for families and guests. The modern design ensures energy efficiency and contemporary comfort, while the utility room and bin store enhance practicality. The communal gardens provide a green oasis within the development, ideal for relaxation and children's play.
Local Amenities
Situated just a 7-minute walk from Harringay Green Lanes Station, the property offers excellent rail connectivity to central London and surrounding areas. Nearby Mulberry Gardens provides ample green space and playgrounds, perfect for families. Education needs are well catered for with Coleridge Community College and St Matthew's Primary School within easy reach. Daily essentials and leisure activities are supported by Tesco Express and Cambridge Leisure Park, while a variety of local cafes and restaurants add to the vibrant community atmosphere. Multiple bus routes further enhance transport options, making this an ideal location for commuters and families alike.
Estimate Calculator
Mortgage Calculator
Purchase Costs
Monthly Costs & Income
Mortgage Calculator
Purchase Costs
Monthly Costs
International Suitability
Strong Investment OpportunityInternational Buyer Calculator
Purchase Costs (Non-UK Resident)
Monthly Costs & Income
Key Considerations for International Buyers
Investment Analytics
Key metrics for investors & buyersProperty Value Projection
Based on 1.0% annual growthMonthly Rental Income
Based on 3.8% annual growthFloorplans
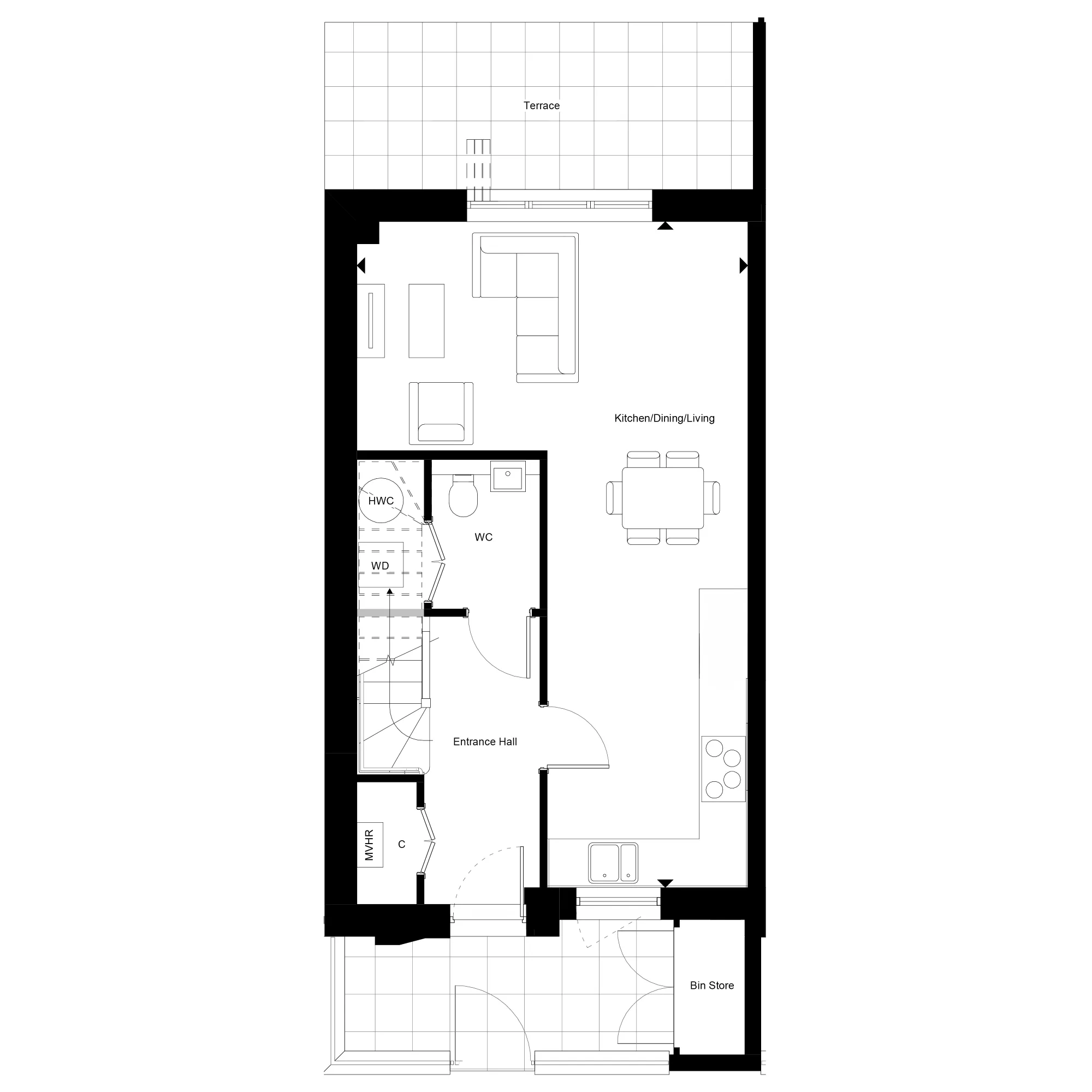
Ground Floor

Ground Floor
First Floor
Second FloorSite Plan

Location
Commute Time Planner
Sun Path & Natural LightAI generated - Estimated
Room-by-Room Light Analysis
Location Scores
Future Developments Nearby
Loading location insights...
Similar Properties
Explore More
Latest Insights & Guides
Expert advice on buying new build homes, market trends, and property investment
Understanding Ground Rent Legislation for New Build Homes
A comprehensive guide to the Leasehold Reform (Ground Rent) Act 2022, peppercorn rents, escalating ground rent clauses, ...
Read moreAre New Build Homes More Expensive? The True Cost of Buying and Owning a New Build Over 10 and 25 Years
New builds cost more upfront, but are they actually more expensive? This analysis breaks down the new build premium, cal...
Read moreNew Build Completion Day: Hour-by-Hour Timeline, What Your Solicitor Does, Money Transfer Explained, and What to Do If Something Goes Wrong
The definitive UK guide to new build completion day. Follow our hour-by-hour timeline from morning funds transfer throug...
Read more

