



















About This Property
Discover what makes this home specialNestled in the picturesque Aberdeenshire countryside, this stunning detached property offers an exceptional blend of modern design and tranquil living. The Macrae is a spacious five-bedroom home, thoughtfully designed to cater to the needs of contemporary families. With a south-west facing garden, this property enjoys abundant natural light throughout the day, making it the perfect haven for relaxation and entertaining. Located in a sought-after area with excellent transport links and schools, this home is ideal for families seeking a balance of convenience and serenity.
Property Features
The Macrae boasts an impressive array of features, including a beautifully landscaped south-west facing garden and a detached double garage. Inside, the property offers two en-suite bathrooms, a modern fitted kitchen, and a dedicated utility room for added convenience. The spacious lounge and dining room provide ample space for family gatherings, while the study is perfect for remote working or quiet reading. Designed with energy efficiency in mind, this home benefits from an EPC rating of A and comes with a 10-year NHBC warranty.
Local Amenities
Located in Aberdeenshire, this property benefits from proximity to excellent schools, including Torphins Primary School and Banchory Academy. Aberdeen Train Station is just a short drive away, offering convenient access to city amenities and beyond. The area is well-served by supermarkets, parks, and charming local restaurants, making it an ideal location for families and professionals alike. With scenic surroundings and a welcoming community, Aberdeenshire offers a lifestyle that combines modern convenience with natural beauty.
Estimate Calculator
Mortgage Calculator
Purchase Costs
Monthly Costs & Income
Mortgage Calculator
Purchase Costs
Monthly Costs
International Suitability
Excellent OpportunityInternational Buyer Calculator
Purchase Costs (Non-UK Resident)
Monthly Costs & Income
Key Considerations for International Buyers
Investment Analytics
Key metrics for investors & buyersProperty Value Projection
Based on 1.6% annual growthMonthly Rental Income
Based on 3.5% annual growthFloorplans
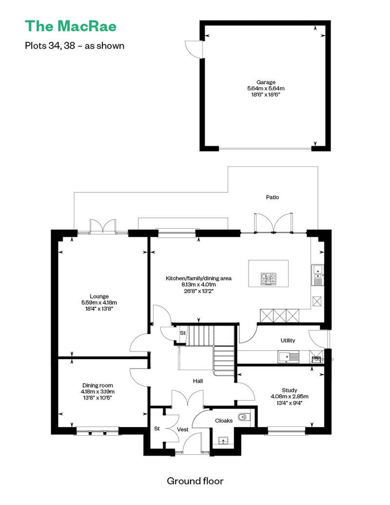
Ground Floor

Ground Floor
First FloorSite Plan
Location
Commute Time Planner
Sun Path & Natural LightAI generated - Estimated
Room-by-Room Light Analysis
Location Scores
Future Developments Nearby
Loading location insights...
Similar Properties
Latest Insights & Guides
Expert advice on buying new build homes, market trends, and property investment
EPC Ratings on New Build Homes Explained: What A, B, and C Mean, Running Cost Differences, and Why Your New Build Might Not Be as Efficient as You Think
A comprehensive guide to EPC ratings on new build homes in the UK, covering what each rating means, real running cost di...
Read moreGreen Mortgages: Better Rates for Energy-Efficient New Builds
Discover how green mortgages reward energy-efficient new build homes with lower interest rates, cashback incentives, and...
Read moreNew Build Storage Solutions and Organisation Tips
Maximise storage in your new build home with clever organisation tips, space-saving solutions, and practical product rec...
Read more

