















About This Property
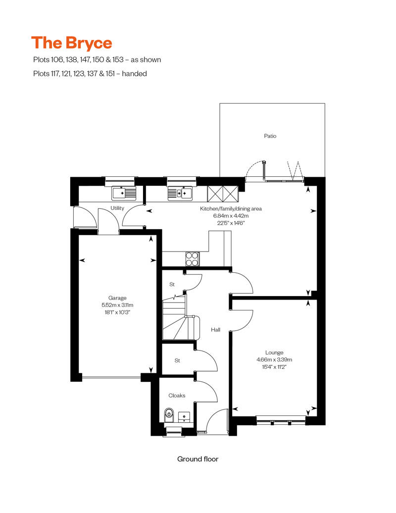
Discover what makes this home specialThe Bryce is a spacious detached family home located in the desirable OX2 8PQ area of West Lothian, Oxford. Offering four well-proportioned bedrooms and three bathrooms, including two en-suites, this property is designed to accommodate modern family living with both comfort and style. The ground floor features a large kitchen/family/dining area that opens onto a south-west facing garden, perfect for entertaining and enjoying natural light throughout the day. The separate lounge provides a quiet retreat, while the utility room and garage add practical convenience.
Situated close to Oxford city centre, this home benefits from excellent transport links including easy access to Oxford Station, providing direct trains to London and Heathrow Airport. The local area boasts a range of amenities including quality schools, parks, and shopping facilities, making it an ideal choice for families and professionals alike. With future developments planned nearby, the property promises good long-term growth potential.
Property Features
This detached home offers a versatile and spacious layout with four bedrooms and three bathrooms, including two en-suites for added privacy and convenience. The open-plan kitchen/family/dining area is the heart of the home, featuring access to a south-west facing garden that enjoys excellent sunlight. Additional features include a separate lounge, utility room, cloakroom, and an integral garage, providing ample storage and practical living space.
Local Amenities
Located within easy reach of Oxford city centre, this property benefits from excellent local amenities including renowned educational institutions such as St. Edward's School and Headington School. The nearby Cutteslowe Park offers green space and recreational facilities, while Oxford Station provides convenient rail links to London and beyond. Healthcare needs are well served by the John Radcliffe Hospital, and a variety of shops and supermarkets are close by for everyday convenience.
Estimate Calculator
Mortgage Calculator
Purchase Costs
Monthly Costs & Income
Mortgage Calculator
Purchase Costs
Monthly Costs
International Suitability
Attractive InvestmentInternational Buyer Calculator
Purchase Costs (Non-UK Resident)
Monthly Costs & Income
Key Considerations for International Buyers
Investment Analytics
Key metrics for investors & buyersProperty Value Projection
Based on 1.6% annual growthMonthly Rental Income
Based on 3.5% annual growthFloorplans
Ground Floor

Ground Floor
First FloorSite Plan
Location
Commute Time Planner
Sun Path & Natural LightAI generated - Estimated
Room-by-Room Light Analysis
Location Scores
Future Developments Nearby
Loading location insights...
Similar Properties
Explore More
Latest Insights & Guides
Expert advice on buying new build homes, market trends, and property investment
Your First Year in a New Build: What Nobody Tells You (and How to Handle It)
The honest guide to living in a brand new home — drying out cracks, snagging battles, building site neighbours, and the ...
Read moreHow Interest Rates Affect New Build Home Prices, Mortgage Costs, and Developer Incentives
Comprehensive guide to how Bank of England interest rates affect new build prices, monthly mortgage payments, developer ...
Read moreNew Build Flooring Issues: Common Snagging Problems
Flooring defects are among the most reported snagging issues in new build homes. From squeaky floorboards and uneven sur...
Read more
.jpg)
