













About This Property
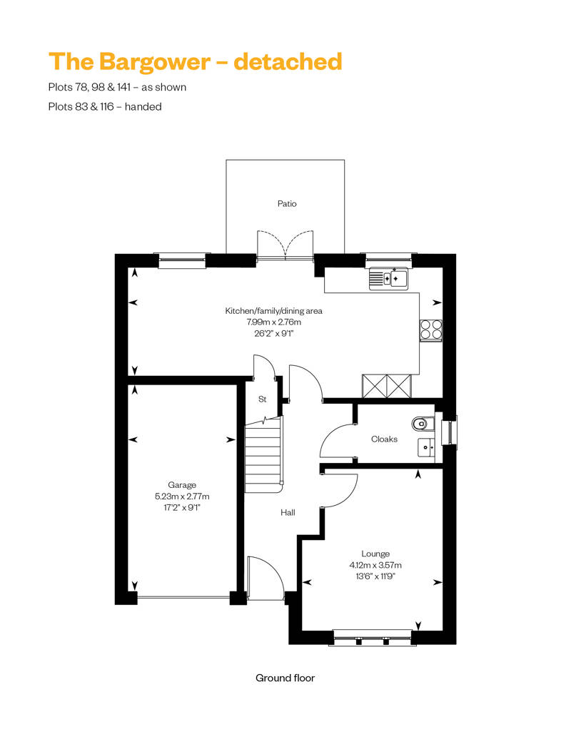
Discover what makes this home specialThe Bargower Detached is a spacious and thoughtfully designed four-bedroom family home located in the desirable OX2 8PQ area of Edinburgh. This property boasts a versatile layout with a large open-plan kitchen, family, and dining area that opens onto a patio, perfect for indoor-outdoor living and entertaining. The ground floor also includes a generous lounge, a convenient cloakroom, and an integral garage, enhancing practicality and comfort. Upstairs, the master bedroom benefits from an en-suite bathroom, while three additional bedrooms and a family bathroom provide ample accommodation for families or guests.
Situated in a well-established neighborhood, this home offers a blend of modern living with easy access to local amenities and excellent transport links. The south-west facing rear garden enjoys good sunlight throughout the day, making it an ideal outdoor space for relaxation and family activities. With its attractive features and prime location, the Bargower Detached represents an excellent opportunity for buyers seeking a comfortable and stylish home in Edinburgh.
Property Features
This property features a modern open-plan kitchen, family, and dining area that creates a bright and sociable hub for the home. The integral garage adds convenience and security for vehicle storage or additional space. Upstairs, the master bedroom includes an en-suite bathroom for privacy, complemented by three further bedrooms and a family bathroom to accommodate family needs. The cloakroom on the ground floor adds practicality, while the patio and south-west facing garden provide an excellent outdoor living area.
Local Amenities
Located in the OX2 8PQ area, this property benefits from proximity to a range of excellent educational institutions including St. Peter's RC Primary School and Oxford High School, catering to families with children of all ages. Transport links are strong with Oxford Parkway Station nearby, providing convenient rail connections to London and surrounding areas. Local amenities such as the Summertown shopping area offer a variety of shops, cafes, and restaurants, while green spaces like Cutteslowe Park and Thornhill Park provide recreational opportunities. Additionally, the John Radcliffe Hospital is within easy reach, enhancing the appeal for healthcare professionals and families alike.
Estimate Calculator
Mortgage Calculator
Purchase Costs
Monthly Costs & Income
Mortgage Calculator
Purchase Costs
Monthly Costs
International Suitability
Good OpportunityInternational Buyer Calculator
Purchase Costs (Non-UK Resident)
Monthly Costs & Income
Key Considerations for International Buyers
Investment Analytics
Key metrics for investors & buyersProperty Value Projection
Based on 1.6% annual growthMonthly Rental Income
Based on 3.5% annual growthFloorplans
Ground Floor

Ground Floor
First FloorSite Plan
Location
Commute Time Planner
Sun Path & Natural LightAI generated - Estimated
Room-by-Room Light Analysis
Location Scores
Future Developments Nearby
Loading location insights...
Similar Properties
Latest Insights & Guides
Expert advice on buying new build homes, market trends, and property investment
Using a Lifetime ISA to Buy Your First New Build Home
Everything you need to know about using a Lifetime ISA to buy your first new build home, including the 25% government bo...
Read moreFeature Walls and Statement Pieces in New Build Homes
A comprehensive UK guide to creating stunning feature walls and statement pieces in new build homes. Covers paint featur...
Read moreNew Build Buyer's Paperwork Checklist: Every Document You Need
A comprehensive checklist of every document needed throughout the new build buying process in the UK. From reservation t...
Read more
/002-bm_centurianvillage_leyand_ext_ellerton_kingsville_3bed_4bed_whitedoors_lowres.jpg)
