
















About This Property
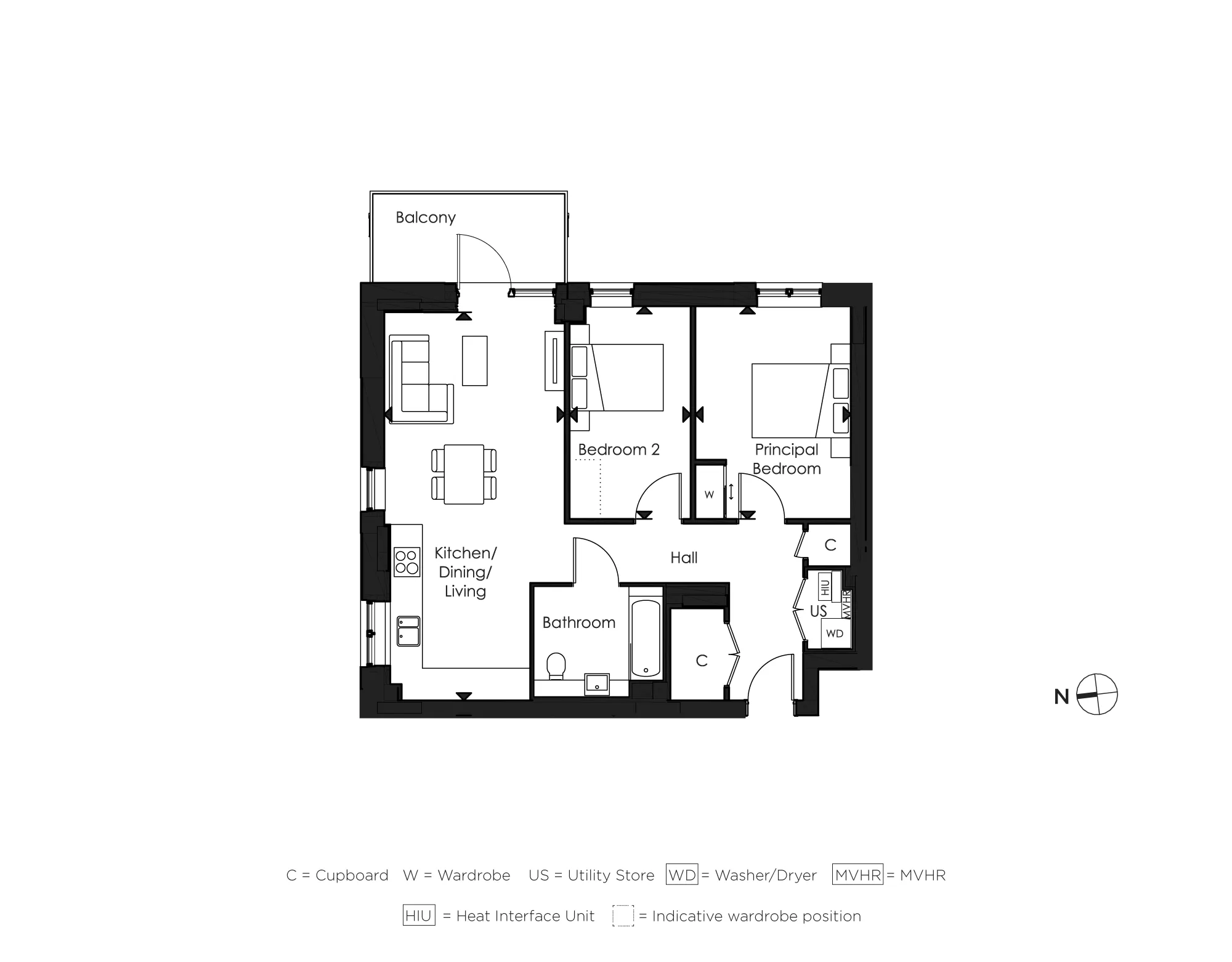
Discover what makes this home specialThe Empire, Apartment 889 is a modern two-bedroom apartment situated in the heart of Cambridge, CB3 1SE. This stylish home offers an open-plan kitchen, dining, and living area that opens onto a balcony facing northwest, providing pleasant afternoon and evening light. The apartment includes a principal bedroom and a second bedroom, perfect for families or professionals seeking a comfortable city living experience. The property is well-designed with practical storage options including cupboards, wardrobes, and a utility store with washer/dryer facilities.
Located close to Cambridge city centre, this apartment benefits from excellent transport links and proximity to a wide range of amenities. Residents can enjoy nearby parks, shopping areas, and renowned educational institutions. The Empire development itself offers a contemporary urban lifestyle with landscaped communal gardens and easy access to public transport, making it ideal for commuters and city dwellers alike.
Property Features
This apartment features a spacious open-plan kitchen, dining, and living area that maximizes natural light and space. The balcony offers outdoor living space with views to the northwest, ideal for relaxing in the afternoon and evening sun. Both bedrooms include built-in wardrobes, and the property benefits from practical storage cupboards and a dedicated utility store with washer/dryer. The bathroom is modern and well-appointed, complementing the overall contemporary design of the apartment.
Local Amenities
Situated within walking distance of Cambridge Train Station (approx. 1.2 km), the apartment offers excellent connectivity to London and other major cities. Local schools such as Parkside Community Primary and The Perse School provide strong educational options. Tesco Express and various local shops cater to daily needs, while Cambridge Leisure Park offers entertainment and dining options. Nearby Jesus Green park provides green space for outdoor activities. Multiple bus routes serve the area, enhancing accessibility and convenience for residents.
Estimate Calculator
Mortgage Calculator
Purchase Costs
Monthly Costs & Income
Mortgage Calculator
Purchase Costs
Monthly Costs
International Suitability
Analyzing...International Buyer Calculator
Purchase Costs (Non-UK Resident)
Monthly Costs & Income
Key Considerations for International Buyers
Investment Analytics
Key metrics for investors & buyersProperty Value Projection
Based on 1.0% annual growthMonthly Rental Income
Based on 3.8% annual growthFloorplan
Ground Floor

Site Plan

Location
Commute Time Planner
Sun Path & Natural LightAI generated - Estimated
Room-by-Room Light Analysis
Location Scores
Future Developments Nearby
Loading location insights...
Similar Properties
Explore More
Latest Insights & Guides
Expert advice on buying new build homes, market trends, and property investment
Construction Costs and How They Affect New Build Prices
A comprehensive breakdown of UK new build construction costs in 2025-2026, covering materials, labour, supply chains, re...
Read moreLong-Term Wealth Building Through New Build Property
A comprehensive guide to building lasting wealth through UK new build property investment. Covering compounding returns,...
Read moreLegal Guide to Extending or Modifying a New Build Home
Complete legal guide to extending or modifying a new build home in England and Wales, covering permitted development rig...
Read more
