
















About This Property
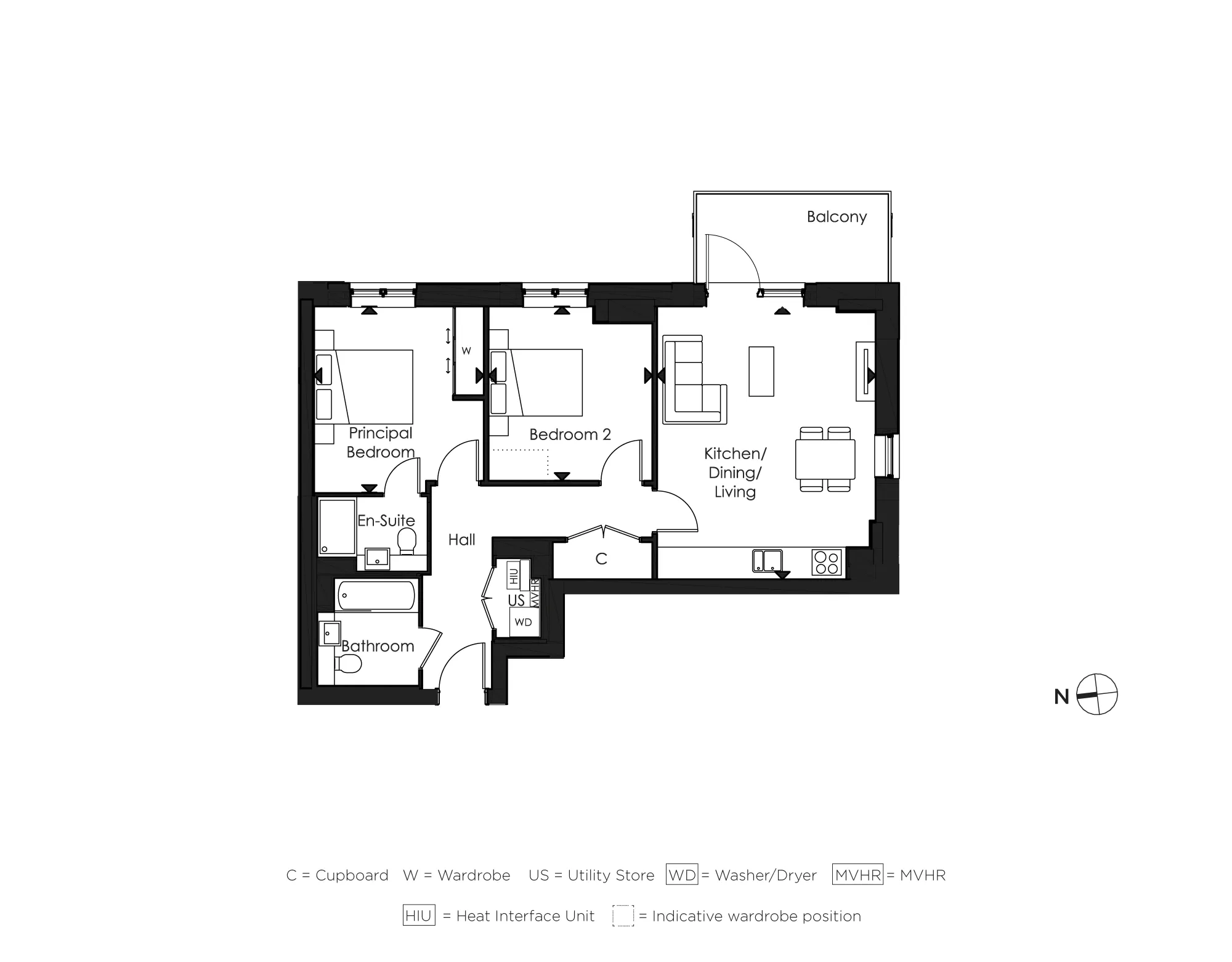
Discover what makes this home specialThe Empire, Apartment 868 is a modern two-bedroom, two-bathroom apartment situated in a vibrant and rapidly developing area of Cambridge, CB3 1SE. This property offers a spacious open-plan kitchen, dining and living area with access to a balcony facing east, allowing for bright morning light. The principal bedroom benefits from an en-suite bathroom, while a second bedroom and a separate bathroom provide ample accommodation for families or professionals. Located within a contemporary development, the apartment offers excellent connectivity and proximity to green spaces, shopping, and cultural amenities.
Residents will enjoy easy access to Cambridge city centre, with a short commute to the historic core and the university precinct. The area is well-served by public transport and cycling routes, making it ideal for sustainable urban living. The Empire development itself is designed with community and convenience in mind, featuring landscaped gardens and nearby parks, contributing to a high quality of life.
Property Features
This apartment boasts a well-designed open-plan kitchen, dining and living space that maximizes natural light from the east-facing balcony. The principal bedroom includes a private en-suite, enhancing comfort and privacy. Additional features include built-in wardrobes, a utility store with washer/dryer, and modern kitchen fittings. The property is part of a secure, contemporary development with landscaped communal areas, perfect for urban professionals or small families seeking convenience and style.
Local Amenities
The property benefits from excellent local amenities including Cambridge North railway station just 0.7 miles away, providing direct links to London King's Cross and other major destinations. The city centre is easily accessible by bike or bus, offering a wealth of shopping, dining, and cultural experiences. Families will appreciate nearby schools such as St. Luke's Primary and Chesterton Community College. Outdoor enthusiasts can enjoy Milton Country Park and Riverside Park within a short distance, while local shops and supermarkets cater to everyday needs.
Estimate Calculator
Mortgage Calculator
Purchase Costs
Monthly Costs & Income
Mortgage Calculator
Purchase Costs
Monthly Costs
International Suitability
Analyzing...International Buyer Calculator
Purchase Costs (Non-UK Resident)
Monthly Costs & Income
Key Considerations for International Buyers
Investment Analytics
Key metrics for investors & buyersProperty Value Projection
Based on 1.0% annual growthMonthly Rental Income
Based on 3.8% annual growthFloorplan
Ground Floor

Site Plan

Location
Commute Time Planner
Sun Path & Natural LightAI generated - Estimated
Room-by-Room Light Analysis
Location Scores
Future Developments Nearby
Loading location insights...
Similar Properties
Explore More
Latest Insights & Guides
Expert advice on buying new build homes, market trends, and property investment
New Build Energy Standards: Market Transition Update
A comprehensive analysis of the UK new build sector's transition to higher energy standards. Covers the Future Homes Sta...
Read moreNew Build Homes in Nottingham: Area Guide and Developments
Discover new build homes in Nottingham with our comprehensive area guide. Covering Lace Market, West Bridgford, Beeston,...
Read moreSustainable Building Materials in Modern New Build Homes
A comprehensive guide to sustainable building materials used in modern UK new build homes. Compare timber frame, low-car...
Read more

