










About This Property
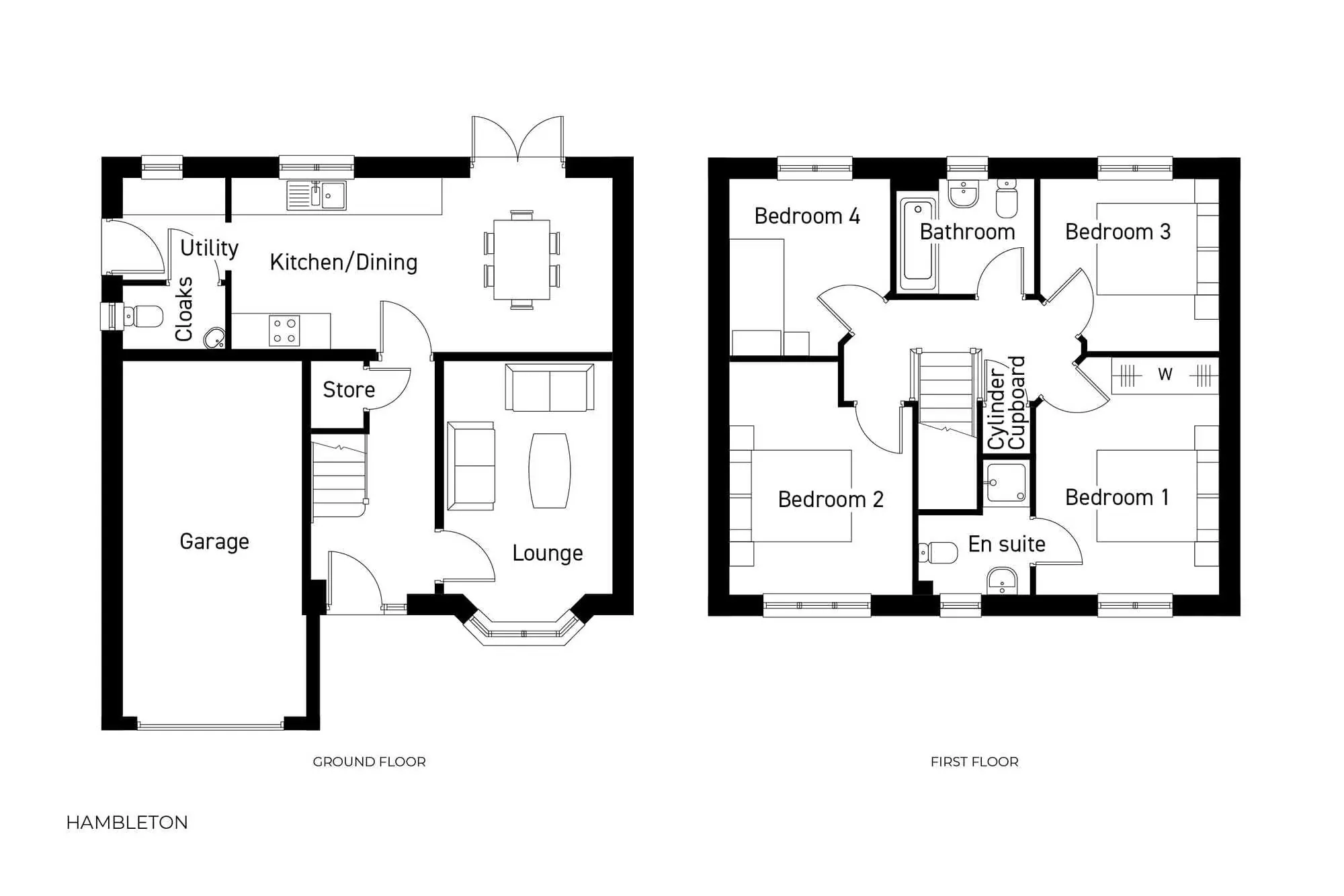
Discover what makes this home specialThe Hambleton is a spacious detached family home located in the desirable area of NG22 8SH, near Calverton, Nottinghamshire. Offering four well-proportioned bedrooms and three bathrooms including an en-suite, this property is ideal for growing families or those seeking extra space. The ground floor boasts a bright kitchen/dining area with direct access to the rear garden, a separate lounge with bay window, utility room, cloakroom, and an integral garage, blending functionality with comfort.
Situated within easy reach of Nottingham city centre (approximately 10 miles south-west), the property benefits from excellent transport links including proximity to Calverton railway station (about 2.5 miles away) and frequent bus services. The local area offers a range of amenities including well-regarded schools, supermarkets, parks, and dining options, making it a convenient and attractive location for buyers. With a south-west facing garden, residents can enjoy good sunlight throughout the day, enhancing the outdoor living experience.
Property Features
This detached home presents a well-thought-out layout with four bedrooms upstairs, including a master bedroom with en-suite facilities. The ground floor features a spacious lounge with a bay window that fills the room with natural light. The kitchen/dining area opens directly onto the garden, perfect for entertaining or family meals. Additional practical features include a utility room, cloakroom, integral garage, and storage space, all designed to enhance everyday living.
Local Amenities
The property is located in a family-friendly community with access to reputable schools such as Calverton Primary School and Redhill Academy. Essential services including a medical centre and local shops like Co-op Food are conveniently nearby. For recreation, residents can enjoy Calverton Leisure Centre and local parks offering green spaces for outdoor activities. The nearby village centre provides a selection of restaurants and pubs, including The Black Horse, enhancing the social and dining options. Nottingham city centre is easily accessible for more extensive shopping, cultural, and entertainment opportunities.
Estimate Calculator
Mortgage Calculator
Purchase Costs
Monthly Costs & Income
Mortgage Calculator
Purchase Costs
Monthly Costs
International Suitability
Moderate OpportunityInternational Buyer Calculator
Purchase Costs (Non-UK Resident)
Monthly Costs & Income
Key Considerations for International Buyers
Investment Analytics
Key metrics for investors & buyersProperty Value Projection
Based on 6.5% annual growthMonthly Rental Income
Based on 4.8% annual growthFloorplan
Ground Floor

Site Plan
Location
Commute Time Planner
Sun Path & Natural LightAI generated - Estimated
Room-by-Room Light Analysis
Location Scores
Future Developments Nearby
Loading location insights...
Similar Properties
Latest Insights & Guides
Expert advice on buying new build homes, market trends, and property investment
New Build Mortgage Affordability: How Much Can You Actually Borrow and What Affects the Decision?
How much can you borrow for a new build home? Understand income multiples, stress testing, what counts as income, what r...
Read moreNew Build Homes in Leeds: Neighbourhood Guide to Prices, South Bank, and Where to Buy in 2026
The complete guide to buying a new build home in Leeds. Neighbourhood-by-neighbourhood prices, South Bank regeneration a...
Read moreHow Developers Support First-Time Buyers Onto the Ladder
A comprehensive guide to the incentives, schemes, and support packages that UK housebuilders offer first-time buyers, fr...
Read more

