










About This Property
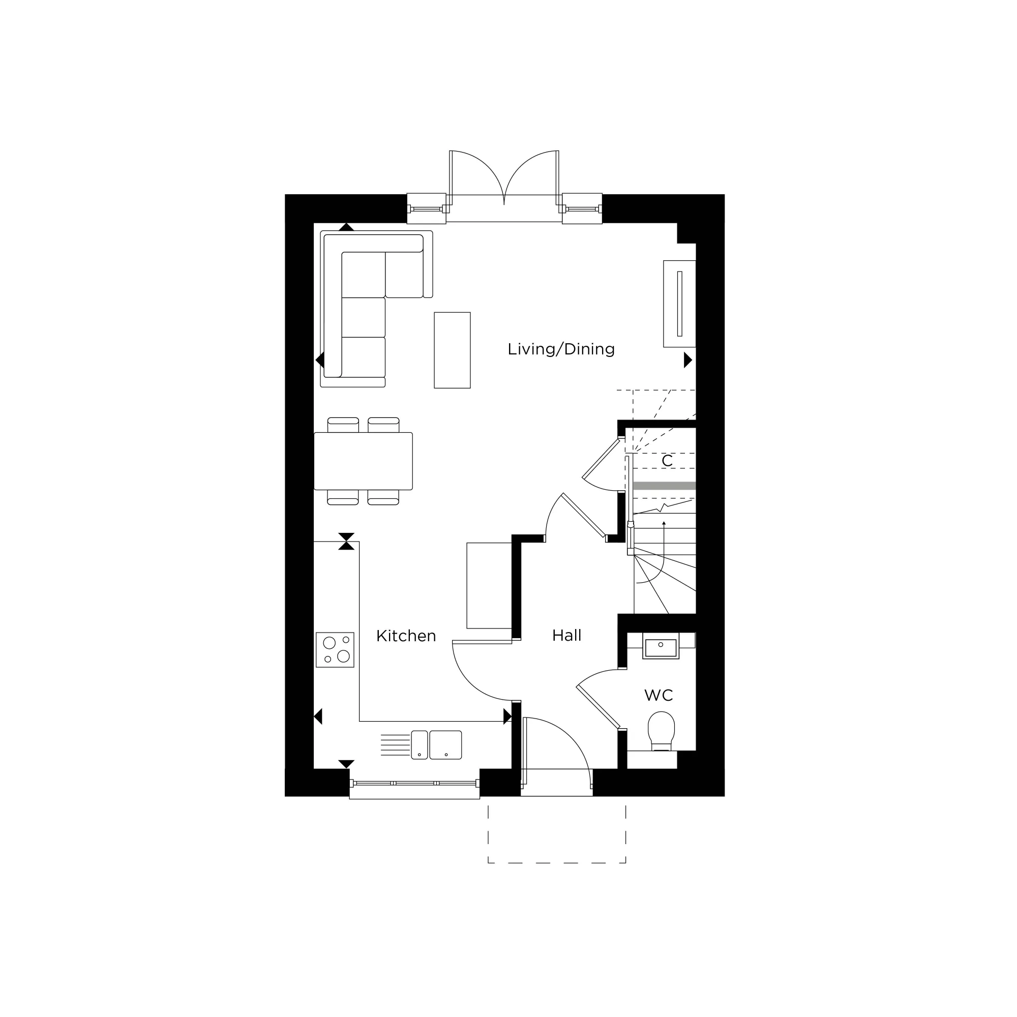
Discover what makes this home specialThe Beacon, Number 74, is a charming semi-detached home located in the desirable CB3 1SE area of Cambridge. This two-bedroom, two-bathroom property offers a modern and practical layout with an open-plan living/dining area and kitchen on the ground floor, complemented by a downstairs WC. Upstairs, the principal bedroom benefits from an en-suite, while a second bedroom and family bathroom complete the accommodation. The property is well-suited for professionals, couples, or small families seeking convenient access to Cambridge's amenities and transport links.
Situated within easy reach of Cambridge city centre, this home benefits from excellent connectivity, including proximity to Cambridge Station and major road links. The surrounding area offers a range of local amenities, including schools, parks, shops, and eateries, making it an ideal location for comfortable living. Future developments in the area promise to enhance the local infrastructure and community facilities, adding to the property's long-term appeal.
Property Features
This property features a well-designed open-plan living and dining area that opens onto the garden via double doors, creating a bright and airy space perfect for entertaining or relaxing. The kitchen is efficiently laid out with modern fittings and ample storage. Upstairs, the principal bedroom includes a private en-suite shower room, while the second bedroom is served by a separate family bathroom. Additional conveniences include a downstairs WC and off-street parking, enhancing everyday functionality.
Local Amenities
The property is conveniently located near several well-regarded schools, including St John's Primary School and Coleridge Community College, making it suitable for families. Cambridge Station, providing direct rail services to London and other destinations, is less than 2 miles away, supported by local bus routes. Residents benefit from nearby shopping options such as Tesco Express and Waitrose, alongside recreational green spaces like Cherry Hinton Hall Park. A variety of cafes, pubs, and restaurants in the vicinity offer diverse dining experiences, contributing to a vibrant community atmosphere.
Estimate Calculator
Mortgage Calculator
Purchase Costs
Monthly Costs & Income
Mortgage Calculator
Purchase Costs
Monthly Costs
International Suitability
Moderate OpportunityInternational Buyer Calculator
Purchase Costs (Non-UK Resident)
Monthly Costs & Income
Key Considerations for International Buyers
Investment Analytics
Key metrics for investors & buyersProperty Value Projection
Based on 1.0% annual growthMonthly Rental Income
Based on 3.8% annual growthFloorplans
Ground Floor
Second FloorLocation
Commute Time Planner
Location Scores
Future Developments Nearby
Loading location insights...
Similar Properties
Explore More
Latest Insights & Guides
Expert advice on buying new build homes, market trends, and property investment
New Build Property Types Explained: Houses, Flats & Townhouses
A comprehensive guide to every UK new build property type including detached, semi-detached, terraced houses, townhouses...
Read moreNew Build Home Security: Locks, Alarms, and Smart Systems
A comprehensive guide to securing your new build home with the latest locks, alarm systems, CCTV, smart security, and pr...
Read moreLocal Authority New Build Housing Schemes Across the UK
Discover how local councils across the UK are delivering affordable new build homes through council housing programmes, ...
Read more

