
About This Property
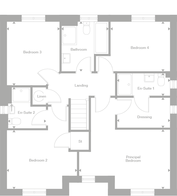
Discover what makes this home specialThe Denwood is a spacious detached family home located in the suburban area of Thornaby, within the TS11 8LB postcode. This property offers four well-proportioned bedrooms, including a principal bedroom with an en-suite and dressing area, alongside three further bedrooms, two of which benefit from en-suite facilities. The ground floor features a large open-plan kitchen, dining, and family area with double doors opening to the garden, a separate lounge, laundry room, and a convenient WC. The integrated garage adds practical parking and storage options.
Situated in a quiet residential neighbourhood, The Denwood provides a perfect balance of peaceful living with easy access to local amenities and transport links. Its proximity to Middlesbrough and Thornaby railway stations makes commuting straightforward, while the nearby regeneration projects promise growth and increased desirability in the coming years. This property is ideal for families seeking comfort, space, and connectivity in the North East of England.
Property Features
This detached home boasts four bedrooms, including a principal suite with a dressing room and en-suite bathroom, ensuring privacy and luxury. The open-plan kitchen, dining, and family area provides a modern, spacious environment for family living and entertaining, complemented by a separate lounge for quieter relaxation. Practical features include a laundry room, ground floor WC, and an integral garage, enhancing convenience and functionality.
Local Amenities
Located in Thornaby, the property benefits from access to several well-regarded schools such as Thornaby Primary School and Thornaby Academy. Local shops and supermarkets including Tesco and Aldi are within easy reach, while nearby parks like Thornaby Green provide outdoor recreational space. The area also offers a variety of restaurants and cafes catering to diverse tastes. Medical facilities and community centres are readily accessible, ensuring comprehensive local services.
Estimate Calculator
Mortgage Calculator
Purchase Costs
Monthly Costs & Income
Mortgage Calculator
Purchase Costs
Monthly Costs
International Suitability
Moderate OpportunityInternational Buyer Calculator
Purchase Costs (Non-UK Resident)
Monthly Costs & Income
Key Considerations for International Buyers
Investment Analytics
Key metrics for investors & buyersProperty Value Projection
Based on 5.0% annual growthMonthly Rental Income
Based on 7.9% annual growthFloorplans
Ground Floor
Location
Commute Time Planner
Location Scores
Future Developments Nearby
Loading location insights...
Similar Properties
Explore More
Latest Insights & Guides
Expert advice on buying new build homes, market trends, and property investment
Setting Up Broadband, Media, and Tech in Your New Build
A comprehensive guide to setting up broadband, smart home tech, TV, and media systems in your new build home, including ...
Read moreLegal Rights During the New Build Defect Liability Period
Understand the defect liability period on new build homes, including developer obligations, how to report defects, what ...
Read moreUnderstanding Section 38 and Section 104 Agreements
A detailed guide to Section 38 (Highways Act) and Section 104 (Water Industry Act) agreements on new build estates, expl...
Read more

