/show-homes/kingsley/kingsley-kitchen.jpg)
/show-homes/kingsley/kingsley-kitchen.jpg)
/show-homes/kingsley/kingsley-kitchen-3.jpg)
/show-homes/kingsley/kingsley-lounge-2.jpg)
/show-homes/kingsley/kingsley-en-suite.jpg)
/show-homes/kingsley/kingsley-en-suite-2.jpg)
/show-homes/kingsley/kingsley-further-double.jpg)
/show-homes/kingsley/kingsley-further-double-2.jpg)
/show-homes/kingsley/kingsley-single-bedroom.jpg)
/show-homes/kingsley/treledan-kingsley.jpg)
/show-homes/kingsley/kingsley-kitchen-2.jpg)
About This Property
Discover what makes this home specialKingsley is a spacious and modern detached family home located in the desirable Saltash area of Cornwall. Featuring four well-proportioned bedrooms and three bathrooms, including an en-suite, this property offers ample living space for growing families or those who enjoy entertaining. The open-plan kitchen and dining area with French doors leading to the rear garden provides a bright and airy environment, perfect for both everyday living and social gatherings. The separate lounge offers a cozy retreat with plenty of natural light.
Situated on Plot 3 within a new development, Kingsley benefits from a peaceful setting with easy access to local amenities and excellent transport links. The property boasts a utility room, downstairs WC, and ample storage space, making it both practical and comfortable. The south-east facing garden ensures good sunlight throughout the day, ideal for outdoor relaxation and family activities.
Property Features
This modern detached home combines style and functionality, offering four bedrooms including a master with en-suite, and three bathrooms in total. The open-plan kitchen and dining area is designed for family living and entertaining, complemented by a separate lounge. Practical features such as a utility room, downstairs WC, and multiple storage cupboards enhance daily convenience. The south-east facing garden provides a pleasant outdoor space with good sunlight exposure.
Local Amenities
Kingsley is ideally positioned close to a range of local amenities. Saltash Railway Station offers convenient rail connections to Plymouth and beyond, while Tamar View Community School provides quality education nearby. The Saltash Leisure Centre and local parks cater to recreational needs. Residents also benefit from nearby supermarkets, medical facilities, and a variety of dining options, making this location well-suited for families and professionals alike.
Estimate Calculator
Mortgage Calculator
Purchase Costs
Monthly Costs & Income
Mortgage Calculator
Purchase Costs
Monthly Costs
International Suitability
Moderate OpportunityInternational Buyer Calculator
Purchase Costs (Non-UK Resident)
Monthly Costs & Income
Key Considerations for International Buyers
Investment Analytics
Key metrics for investors & buyersProperty Value Projection
Based on 2.9% annual growthMonthly Rental Income
Based on 4.2% annual growthFloorplans
Ground Floor
/floorplans/442926_treledan_gf_plan_kingsley.jpg)
Ground Floor
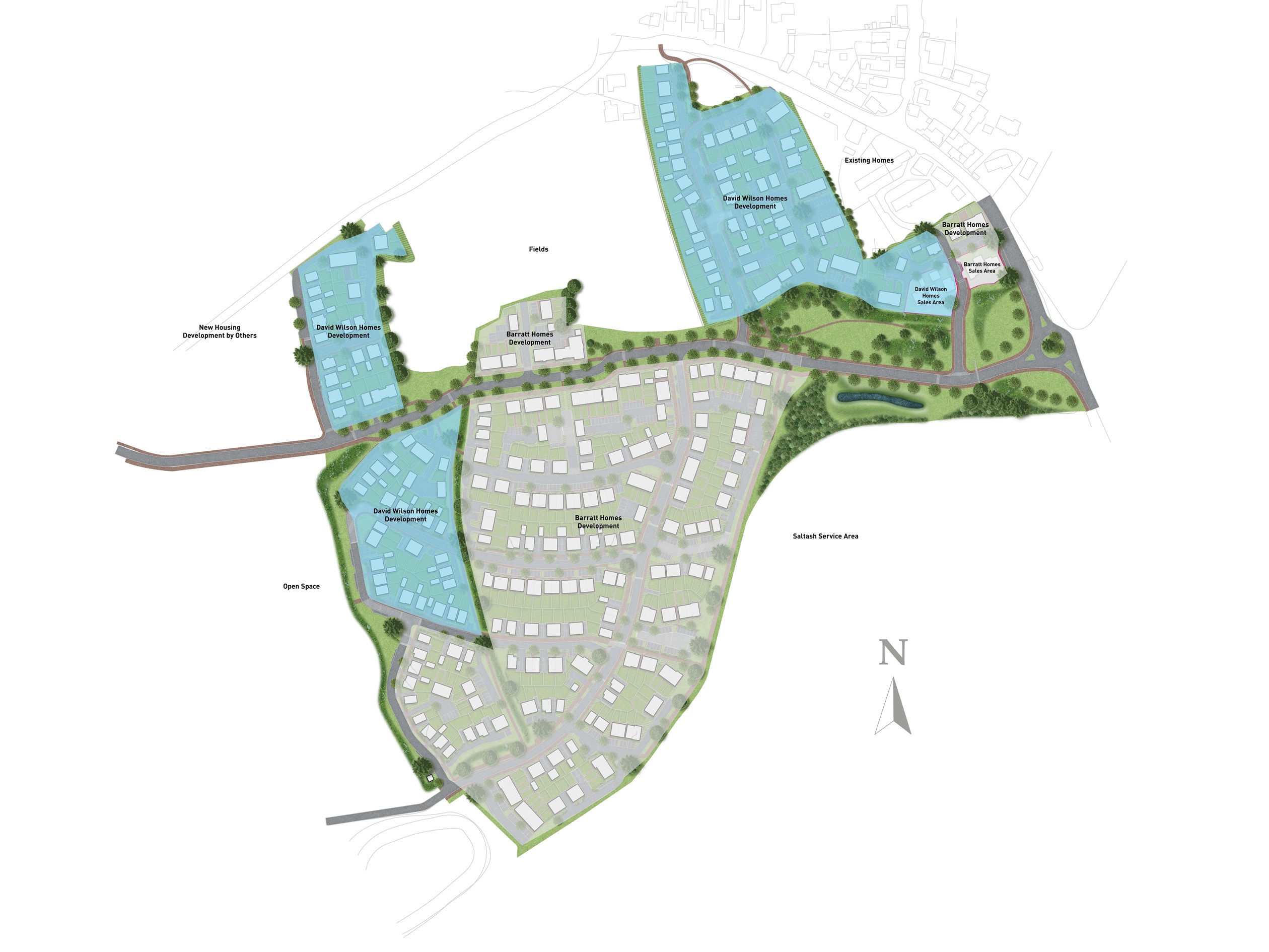
First FloorSite Plan
/bdw005159-treledan-master-plan_interactive_compass-only-min.jpg)
Location
Commute Time Planner
Sun Path & Natural LightAI generated - Estimated
Room-by-Room Light Analysis
Location Scores
Future Developments Nearby
Loading location insights...
Similar Properties
Explore More
Latest Insights & Guides
Expert advice on buying new build homes, market trends, and property investment
Legal Implications of Snagging Issues on New Builds
In-depth legal guide to snagging and defects on new build homes, covering your rights under contract law, the Consumer R...
Read moreDeveloper Incentives vs Price Discounts: Which Saves You More on a New Build?
A detailed financial comparison of new build incentives versus price reductions. Includes worked examples showing the re...
Read moreNew Build Specifications Guide: What's Included as Standard
Discover what comes as standard in UK new build homes, from kitchens and bathrooms to heating and electrics. Compare sta...
Read more

