
















About This Property
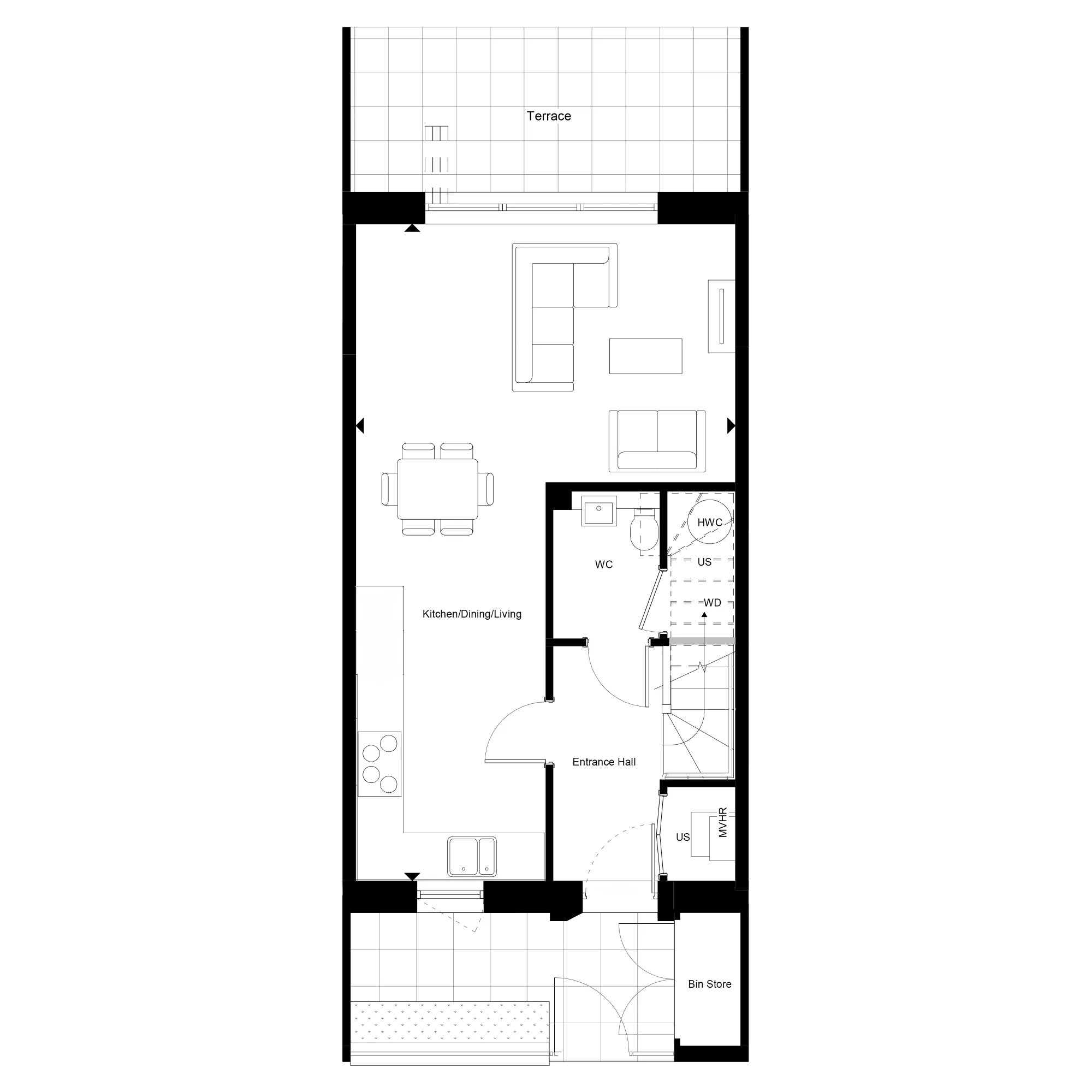
Discover what makes this home specialThe Pine, Number 19, is a beautifully designed two-bedroom, two-bathroom house located in a modern development in Cambridge, CB3 1SE. This property offers a contemporary open-plan kitchen, dining, and living area that opens onto a terrace, perfect for indoor-outdoor living. Upstairs, the principal bedroom benefits from an en-suite and balcony, while a second bedroom provides additional space for family or guests. The property combines stylish living with practical features such as a bin store and cloakroom on the ground floor.
Situated in a thriving community with excellent access to green spaces like Mulberry Gardens, this home is ideal for those seeking a balance of urban convenience and natural surroundings. The location benefits from proximity to Harringay Green Lanes Station, providing easy access to Cambridge city centre and beyond. With well-regarded local schools and a variety of amenities nearby, The Pine offers an excellent lifestyle for families and professionals alike.
Property Features
This modern house features an open-plan kitchen, dining, and living area that maximizes space and light, complemented by a terrace for outdoor relaxation. The principal bedroom includes an en-suite bathroom and a private balcony, enhancing comfort and privacy. Practical additions such as a cloakroom and bin store add convenience to daily living. The property is part of a contemporary development with landscaped communal gardens and parking options nearby.
Local Amenities
Located within a 7-minute walk to Harringay Green Lanes Station, the property offers excellent transport links to central London and surrounding areas. Nearby Mulberry Gardens provides a peaceful green space for recreation and family outings. The area is served by well-regarded primary schools such as St. Thomas More Catholic Primary and St. Mary's Church of England Primary School, making it suitable for families. A variety of local shops, cafes, and restaurants add to the convenience and vibrant community atmosphere.
Estimate Calculator
Mortgage Calculator
Purchase Costs
Monthly Costs & Income
Mortgage Calculator
Purchase Costs
Monthly Costs
International Suitability
Moderate OpportunityInternational Buyer Calculator
Purchase Costs (Non-UK Resident)
Monthly Costs & Income
Key Considerations for International Buyers
Investment Analytics
Key metrics for investors & buyersProperty Value Projection
Based on 1.0% annual growthMonthly Rental Income
Based on 3.8% annual growthFloorplans
Ground Floor

Ground Floor
First Floor
Second FloorSite Plan

Location
Commute Time Planner
Sun Path & Natural LightAI generated - Estimated
Room-by-Room Light Analysis
Location Scores
Future Developments Nearby
Loading location insights...
Similar Properties
Latest Insights & Guides
Expert advice on buying new build homes, market trends, and property investment
How to Use a Snagging App to Track Defects
Snagging apps transform the way you document and track defects in your new build home. This guide reviews the best UK sn...
Read moreFurnished vs Unfurnished: Letting Your New Build Investment
A detailed analysis of the rental premiums, tenant preferences, wear and tear costs, furnishing budgets, and tax implica...
Read moreOff-Plan Property Investment in the UK: How to Evaluate Deals, Manage Risk, and Maximise Returns
Complete guide to off-plan property investment in the UK covering deal evaluation, risk management, due diligence checkl...
Read more

