
















About This Property
Discover what makes this home specialThe Kingsley, Number 13 is a beautifully designed detached 3-bedroom home located within a thriving new development in the CB3 1SE postcode area of Cambridge. This property offers a harmonious blend of modern living with practical design, featuring a spacious open-plan kitchen and dining area that opens onto a south-west facing rear garden, perfect for enjoying afternoon and evening sun. The living room provides a comfortable and bright space for relaxation, while upstairs benefits from a principal bedroom with en-suite, a second double bedroom, and a well-appointed bathroom, making it ideal for families or professionals alike.
Situated in a peaceful yet well-connected neighbourhood, The Kingsley enjoys proximity to a range of local amenities including reputable schools, parks, and shops. The property benefits from excellent transport links, with Cambridge North railway station just 2.3 miles away, providing frequent services to London and other key destinations. The surrounding area is earmarked for continued growth and development, making this an attractive investment opportunity as well as a comfortable family home.
Property Features
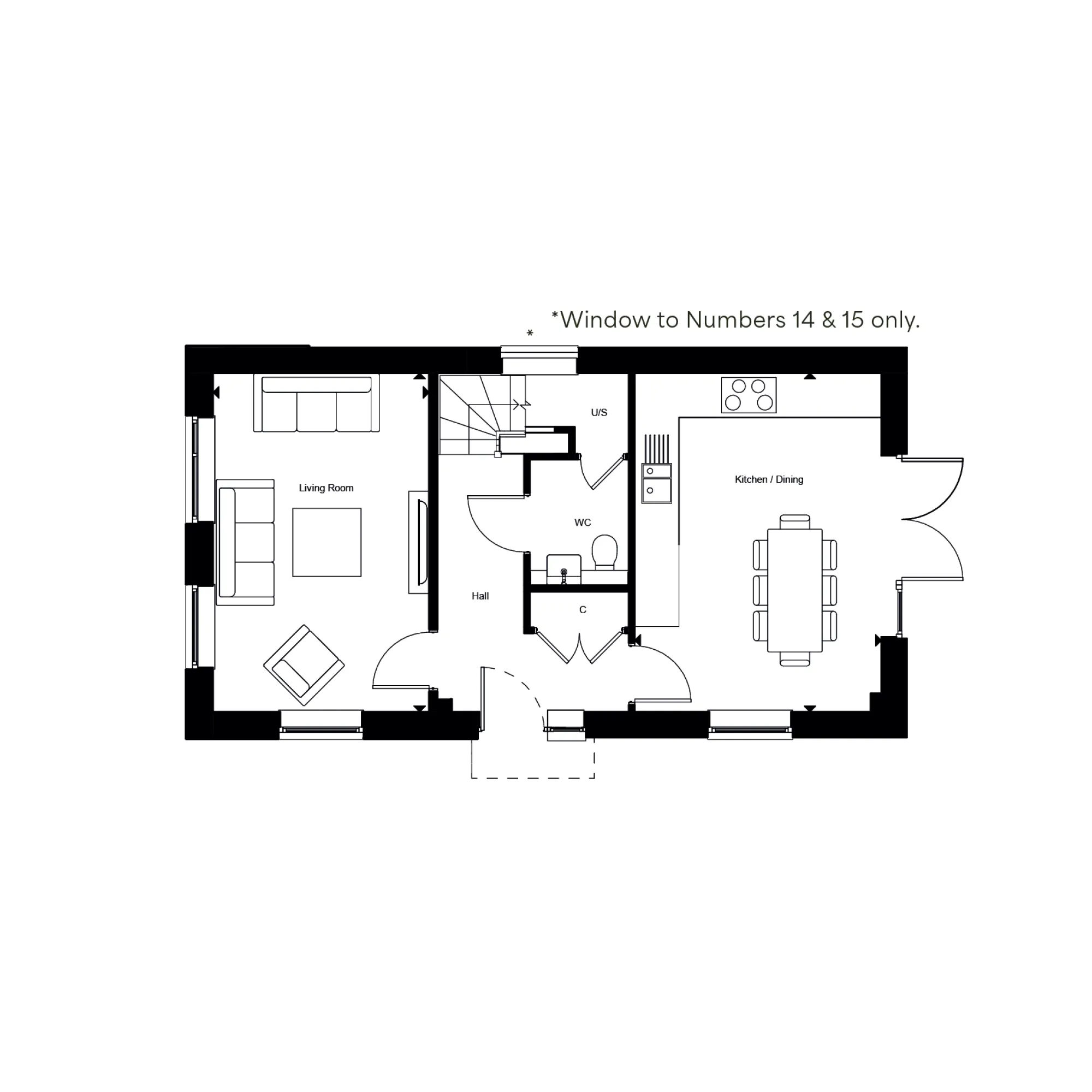
This detached home boasts a well-planned layout with three bedrooms including a principal bedroom with an en-suite bathroom. The open-plan kitchen and dining area is spacious and bright, featuring double doors that lead to the garden, enhancing indoor-outdoor living. Additional features include a separate living room, a convenient cloakroom/WC on the ground floor, and built-in storage under the stairs. The south-west facing garden ensures good natural light throughout the day, especially in the afternoon and evening, ideal for entertaining or relaxing outdoors.
Local Amenities
The property is well positioned near Cambridge North Station, just over 2 miles away, offering excellent rail connectivity to London King's Cross (approx. 50 minutes) and other major cities. Cambridge city centre is accessible within 10 minutes by car or public transport, providing a wealth of cultural, shopping, and dining options. Families will appreciate nearby schools such as St Matthew's Primary and Chesterton Community College, both highly regarded. For leisure, residents can enjoy green spaces like Jesus Green and Chesterton Recreation Ground. Local shops, supermarkets, and eateries are conveniently located along Milton Road and nearby streets, supporting a vibrant community lifestyle.
Estimate Calculator
Mortgage Calculator
Purchase Costs
Monthly Costs & Income
Mortgage Calculator
Purchase Costs
Monthly Costs
International Suitability
Analyzing...International Buyer Calculator
Purchase Costs (Non-UK Resident)
Monthly Costs & Income
Key Considerations for International Buyers
Investment Analytics
Key metrics for investors & buyersProperty Value Projection
Based on 1.0% annual growthMonthly Rental Income
Based on 3.8% annual growthFloorplans
Ground Floor

Ground Floor
First Floor
Second FloorSite Plan

Location
Commute Time Planner
Sun Path & Natural LightAI generated - Estimated
Room-by-Room Light Analysis
Location Scores
Future Developments Nearby
Loading location insights...
Similar Properties
Explore More
Latest Insights & Guides
Expert advice on buying new build homes, market trends, and property investment
How Long Do Developers Take to Fix Snagging Issues?
From minor cosmetic fixes to major structural defects, find out how long UK developers typically take to resolve snaggin...
Read moreYear One Budget Guide: New Build Running Costs
Plan your first year in a new build home with this comprehensive budget guide covering mortgage payments, council tax, u...
Read moreUK New Build Market Outlook: Spring 2026 Forecast
A comprehensive analysis of the UK new build housing market heading into spring 2026, covering regional price forecasts,...
Read more

.jpg)