About This Property
Discover what makes this home specialProperty 18 at The Walled Garden, Trent Park, is a beautifully designed five-bedroom family home located in the peaceful and green surroundings of Enfield, North London. Boasting spacious living areas including a large open-plan kitchen/dining/family room that opens onto a terrace, this home is perfect for modern family living and entertaining. The property benefits from a generous garden with a south-east facing aspect, ensuring pleasant morning and early afternoon sunlight. The inclusion of a utility room and multiple storage cupboards adds to the practicality of the layout.
Situated within a well-planned community, this house offers excellent connectivity to Central London via Enfield Chase station, just over a mile away, providing a direct rail link into Liverpool Street. The nearby Trent Park offers extensive recreational opportunities, while local schools and amenities ensure convenience for families. With ongoing regeneration projects in Enfield, this property represents a sound investment in a growing and well-connected area of London.
Property Features
This substantial family home combines modern living with practical design. The large open-plan kitchen/dining/family room is the heart of the house, ideal for gatherings and daily living. The inclusion of three bathrooms, including en-suites, caters comfortably to family needs. The utility room provides extra convenience, while the terrace and garden offer outdoor living space with good sunlight exposure. Ample storage cupboards throughout the home enhance functionality.
Local Amenities
The property is well-served by local amenities, including Enfield Chase Station which offers frequent rail services into Central London. Trent Park, a large country park, provides extensive green space for outdoor activities. Families benefit from nearby schools such as Chase Side Primary and Enfield Grammar School. Local shops and supermarkets are within easy reach, alongside a variety of restaurants and cafes, ensuring a balanced lifestyle of convenience and leisure.
Estimate Calculator
Mortgage Calculator
Purchase Costs
Monthly Costs & Income
Mortgage Calculator
Purchase Costs
Monthly Costs
International Suitability
Moderate OpportunityInternational Buyer Calculator
Purchase Costs (Non-UK Resident)
Monthly Costs & Income
Key Considerations for International Buyers
Investment Analytics
Key metrics for investors & buyersProperty Value Projection
Based on 2.5% annual growthMonthly Rental Income
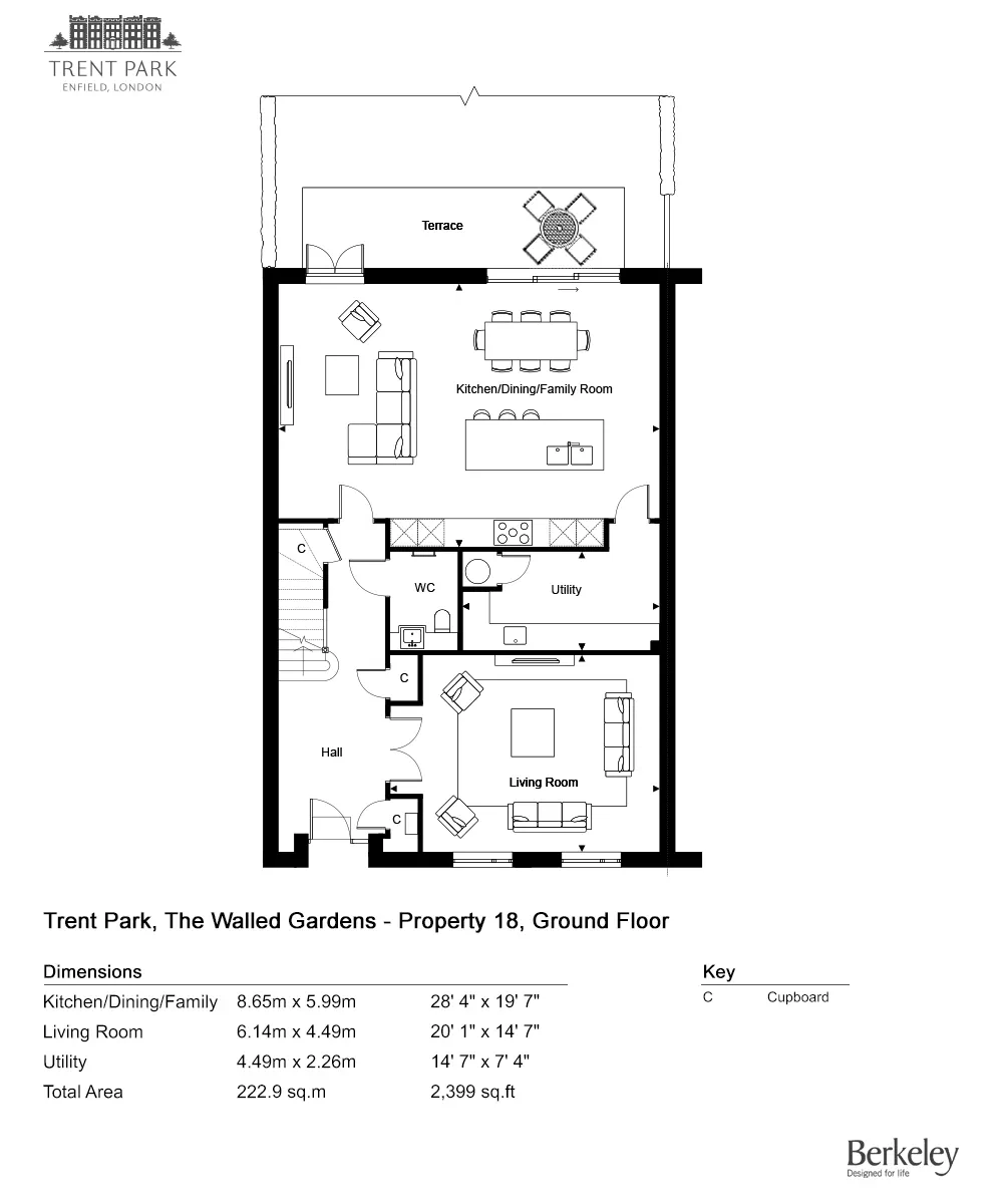
Based on 2.1% annual growthFloorplan
Ground Floor
Site Plan
Location
Commute Time Planner
Sun Path & Natural LightAI generated - Estimated
Room-by-Room Light Analysis
Location Scores
Future Developments Nearby
Loading location insights...
Similar Properties
Explore More
Latest Insights & Guides
Expert advice on buying new build homes, market trends, and property investment
What to Check Before You Reserve a New Build
A comprehensive checklist of everything to verify before paying a reservation fee on a new build home in the UK. Covers ...
Read moreNew Build Property Types Explained: Houses, Flats & Townhouses
A comprehensive guide to every UK new build property type including detached, semi-detached, terraced houses, townhouses...
Read moreChoosing the Right Solicitor for Your New Build: CQS Accreditation, Fee Structures Compared, Panel vs Independent, Questions to Ask Before Instructing, Red Flags, and How to Switch Mid-Transaction
A practical guide to choosing, vetting, and working with a solicitor for your new build purchase in the UK — CQS accredi...
Read more

