About This Property
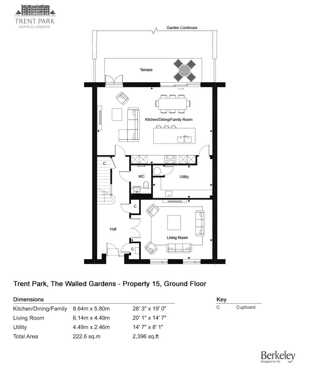
Discover what makes this home specialProperty 15 at The Walled Garden in Trent Park is a beautifully designed four-bedroom family home set within a prestigious development in Enfield, London. Offering a generous 2,396 sq.ft of living space, this property boasts a spacious open-plan kitchen, dining, and family room that opens onto a terrace and private garden, perfect for indoor-outdoor living. The living room is well-proportioned with large windows allowing natural light to flood in, complemented by a separate utility room and a convenient ground floor WC.
Situated in a sought-after location with excellent transport links, the property benefits from proximity to Enfield Chase station, providing swift access to central London. The home is ideally positioned for families, with several well-regarded schools, parks, and local amenities within easy reach. The garden faces a south-easterly aspect, ensuring good sunlight throughout the day, enhancing the outdoor space's appeal.
This property combines modern living with the charm of a tranquil garden setting, making it an ideal choice for buyers seeking a balance of convenience and lifestyle in a growing area of North London.
Property Features
The property features a large open-plan kitchen, dining, and family room designed for modern living and entertaining. The separate living room offers a more formal space for relaxation. Utility and storage cupboards add practicality, while the terrace and private garden provide excellent outdoor living areas. With four bedrooms and three bathrooms, including en-suites, the home is well-suited for families or those needing flexible living space.
Local Amenities
Located close to Enfield Chase station, the property offers easy access to central London and surrounding areas. Enfield Town Centre provides a variety of shops, restaurants, and services, while the nearby Trent Park offers extensive green space for recreation. Families will appreciate the proximity to well-regarded schools such as St. Michael's CofE Primary and Chace Community School. Local supermarkets and healthcare facilities ensure everyday convenience.
Estimate Calculator
Mortgage Calculator
Purchase Costs
Monthly Costs & Income
Mortgage Calculator
Purchase Costs
Monthly Costs
International Suitability
Moderate OpportunityInternational Buyer Calculator
Purchase Costs (Non-UK Resident)
Monthly Costs & Income
Key Considerations for International Buyers
Investment Analytics
Key metrics for investors & buyersProperty Value Projection
Based on 2.5% annual growthMonthly Rental Income
Based on 2.1% annual growthFloorplan
Ground Floor
Site Plan
Location
Commute Time Planner
Sun Path & Natural LightAI generated - Estimated
Room-by-Room Light Analysis
Location Scores
Future Developments Nearby
Loading location insights...
Similar Properties
Explore More
Latest Insights & Guides
Expert advice on buying new build homes, market trends, and property investment
Affordable Housing Supply Trends in New Build
A comprehensive analysis of affordable housing delivery through new build development — covering Section 106 obligations...
Read moreRent to Buy Schemes and New Build Properties
Rent to Buy offers a unique route to homeownership by letting you rent a new build at a subsidised rate while saving for...
Read moreSolar Panels on New Build Homes: Costs, Generation, and Return on Investment
A comprehensive guide to solar panels on UK new build homes. Covers typical 3-4kW systems costing £5,000-£8,000, annual ...
Read more

/002-bm_centurianvillage_leyand_ext_ellerton_kingsville_3bed_4bed_whitedoors_lowres.jpg)