
















About This Property
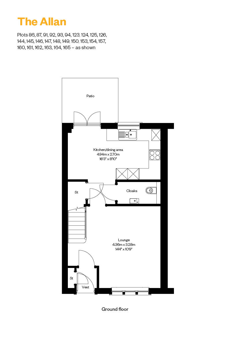
Discover what makes this home specialThe Allan end terrace property located in Edinburgh, OX2 8PQ is a charming and spacious three-bedroom home ideal for families and professionals alike. This terraced house offers a well-designed living space with a comfortable lounge, a modern kitchen/dining area that opens onto a private patio, and two bathrooms including a cloakroom on the ground floor. The layout is practical and maximizes natural light, creating a warm and inviting atmosphere throughout the home.
Situated in a sought-after area of Edinburgh, this property benefits from excellent local amenities and transport links, making it a convenient choice for commuters and those seeking a vibrant community. The rear garden faces south, ensuring ample sunlight during the day, perfect for outdoor activities and entertaining. With a competitive price of £384,995, this home represents a great opportunity for buyers looking for quality and value in a prime location.
Property Features
This property boasts a south-facing garden that captures plenty of sunlight, enhancing the outdoor living experience. The modern kitchen and dining area are designed for both functionality and style, featuring ample space for cooking and entertaining. The cloakroom on the ground floor adds convenience, while the spacious lounge provides a comfortable setting for relaxation. As an end terrace, the property benefits from additional privacy and natural light, complemented by useful storage spaces throughout.
Local Amenities
Located within close proximity to reputable schools such as St. Joseph's Catholic Primary School and Cherwell School, this property is ideal for families. Residents have easy access to local supermarkets including Tesco and Sainsbury's, as well as recreational parks like Cutteslowe Park. Excellent public transport links, including nearby Oxford Parkway and Oxford Station, provide convenient connections to Oxford city centre and beyond. Healthcare and leisure facilities are also readily accessible, supporting a balanced and comfortable lifestyle.
Estimate Calculator
Mortgage Calculator
Purchase Costs
Monthly Costs & Income
Mortgage Calculator
Purchase Costs
Monthly Costs
International Suitability
Excellent OpportunityInternational Buyer Calculator
Purchase Costs (Non-UK Resident)
Monthly Costs & Income
Key Considerations for International Buyers
Investment Analytics
Key metrics for investors & buyersProperty Value Projection
Based on 1.6% annual growthMonthly Rental Income
Based on 3.5% annual growthFloorplan
Ground Floor

Site Plan
Location
Commute Time Planner
Sun Path & Natural LightAI generated - Estimated
Room-by-Room Light Analysis
Location Scores
Future Developments Nearby
Loading location insights...
Similar Properties
Explore More
Latest Insights & Guides
Expert advice on buying new build homes, market trends, and property investment
How Interest Rates Affect New Build Home Prices, Mortgage Costs, and Developer Incentives
Comprehensive guide to how Bank of England interest rates affect new build prices, monthly mortgage payments, developer ...
Read moreOff-Plan Property Investment in the UK: How to Evaluate Deals, Manage Risk, and Maximise Returns
Complete guide to off-plan property investment in the UK covering deal evaluation, risk management, due diligence checkl...
Read moreUtility Room Design: Making the Most of Your New Build's Hidden Space
A comprehensive UK guide to designing and organising your new build utility room. Covers layouts, laundry zones, sink op...
Read more

