
















About This Property
Discover what makes this home specialThe Pine, Number 9, is a beautifully designed four-bedroom family home located within a modern development in Cambridge, CB3 1SE. This property offers a harmonious blend of contemporary living with spacious interiors, including an open-plan kitchen, dining, and living area that opens onto a south-west facing terrace, perfect for enjoying afternoon and evening sunlight. The principal bedroom boasts an en-suite and balcony, providing a private retreat. With three bathrooms and well-planned storage, this home is ideal for families seeking comfort and style in a thriving community.
Situated just a 7-minute walk from Harringay Green Lanes Station, residents benefit from excellent transport links into Cambridge city centre and beyond. The location offers a peaceful setting adjacent to Mulberry Gardens, providing green space and playground facilities, while local amenities such as schools, shops, and restaurants are within easy reach. This property represents a rare opportunity to live in a sought-after area with strong growth potential and excellent connectivity.
Property Features
This property impresses with its south-west facing garden and terrace, ensuring ample natural light and outdoor living space. The open-plan kitchen, dining, and living area creates a spacious and sociable environment, complemented by a balcony off the principal bedroom. Practical features include multiple bathrooms, storage cupboards, and a dedicated bin store, enhancing everyday convenience. The modern architectural design and quality finishes make this home both stylish and functional.
Local Amenities
The property benefits from excellent local amenities, including the nearby Harringay Green Lanes Station providing direct rail access. Mulberry Gardens offers a well-maintained green space with playground facilities ideal for families. Educational needs are well served by Chesterton Community College and St. Luke's Primary School, both highly rated. Shopping and leisure options are plentiful with Tesco Express and Cambridge Leisure Park close by, alongside a variety of local cafes and restaurants that enrich community life.
Estimate Calculator
Mortgage Calculator
Purchase Costs
Monthly Costs & Income
Mortgage Calculator
Purchase Costs
Monthly Costs
International Suitability
Analyzing...International Buyer Calculator
Purchase Costs (Non-UK Resident)
Monthly Costs & Income
Key Considerations for International Buyers
Investment Analytics
Key metrics for investors & buyersProperty Value Projection
Based on 1.0% annual growthMonthly Rental Income
Based on 3.8% annual growthFloorplans
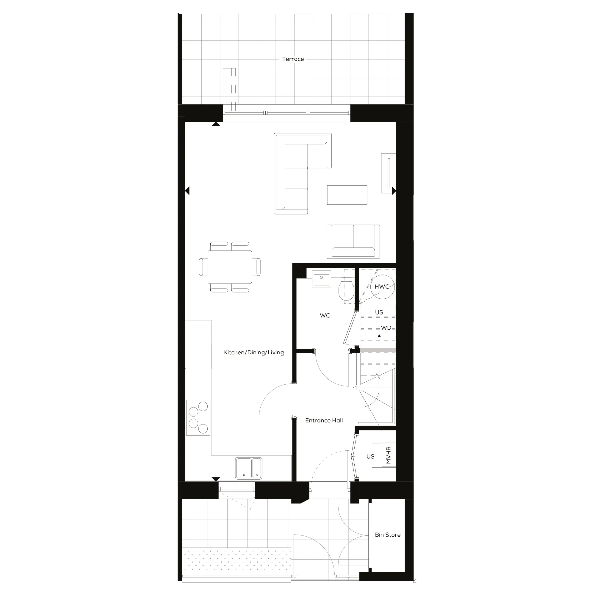
Ground Floor

Ground Floor
First Floor
Second FloorSite Plan

Location
Commute Time Planner
Sun Path & Natural LightAI generated - Estimated
Room-by-Room Light Analysis
Location Scores
Future Developments Nearby
Loading location insights...
Similar Properties
Explore More
Latest Insights & Guides
Expert advice on buying new build homes, market trends, and property investment
UK New Build Market Report: Winter 2026 — Prices, Sales Volumes, Regional Data, and What It Means for Buyers
Comprehensive winter 2026 UK new build market analysis covering national prices, regional breakdowns, sales volumes, mor...
Read moreHow Developers Are Creating Accessible and Inclusive Homes
Explore how UK housebuilders are embracing accessible design standards including Part M, M4(2) and M4(3) categories, lif...
Read moreDiscount Market Sale Homes on New Build Developments
Discount Market Sale (DMS) homes offer new builds at 20-30% below market value, secured through Section 106 planning agr...
Read more

