















About This Property
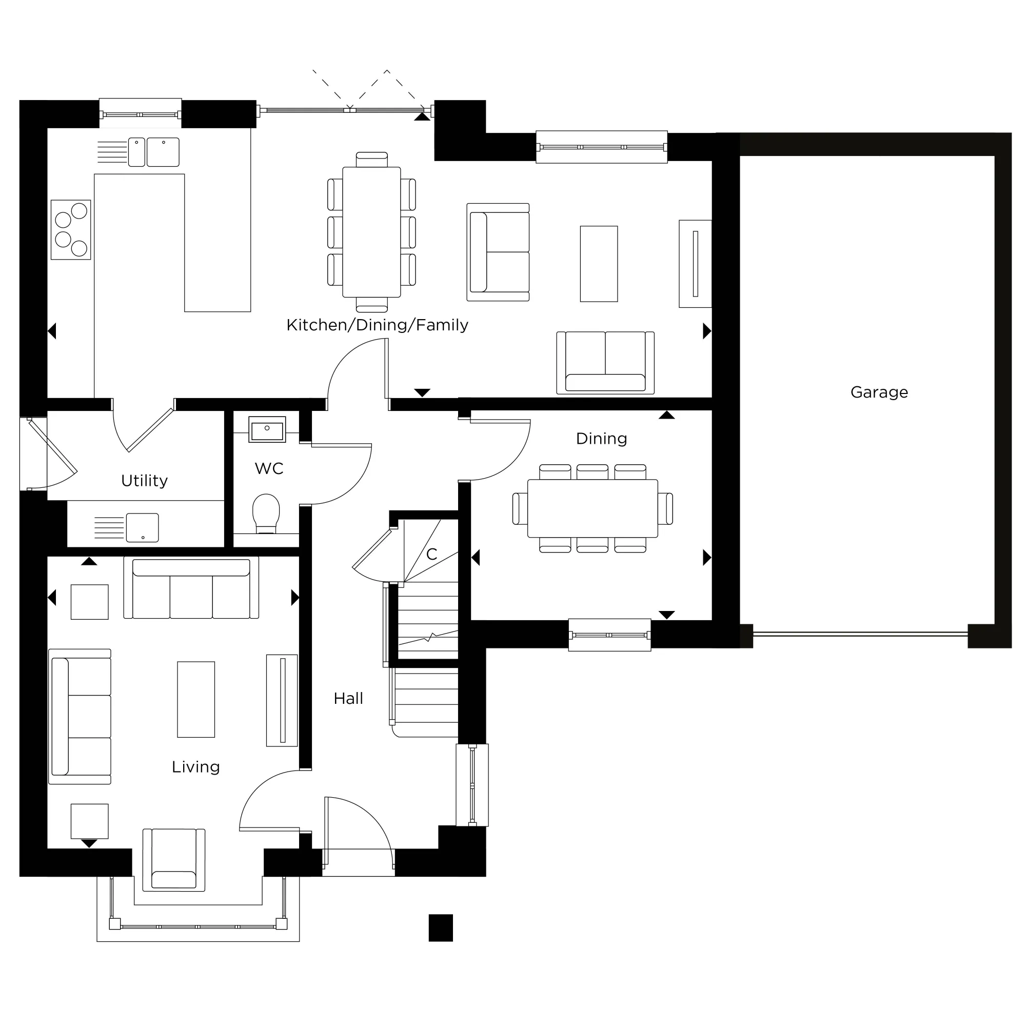
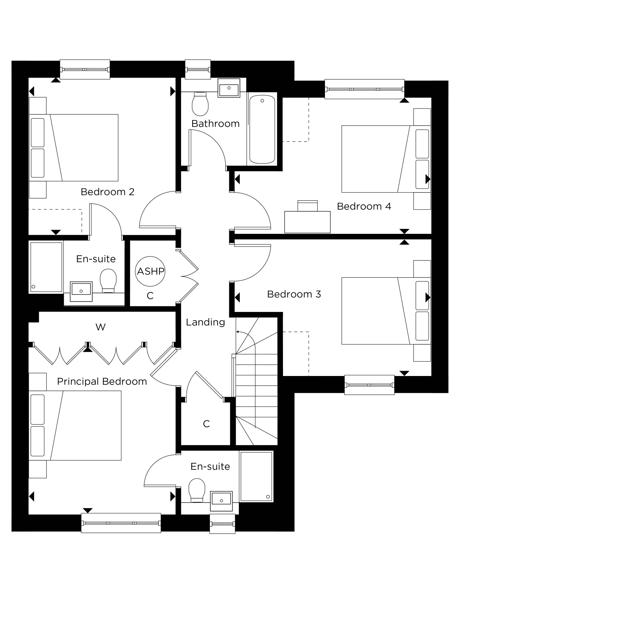
Discover what makes this home specialThe Brook, Number 71, is a beautifully designed detached family home located in the sought-after CB3 postcode area of Cambridge. Boasting four spacious bedrooms and three bathrooms, including two en-suites, this property offers ample living space for a growing family. The open-plan kitchen, dining, and family area is perfect for modern living and entertaining, complemented by a separate dining room and a bright living room with bay windows. The inclusion of a utility room and a garage adds to the practicality of this home.
Situated just under two miles from Cambridge Station, the property benefits from excellent transport links into the city center and beyond, including direct trains to London King's Cross in under an hour. The surrounding area is well-served by local amenities, including reputable schools, parks, shops, and restaurants, making it an ideal location for families and professionals alike. Future infrastructure developments promise to enhance connectivity and residential growth, supporting strong long-term value.
Property Features
This detached home offers a versatile layout with four well-proportioned bedrooms, including a principal bedroom with a walk-in wardrobe and en-suite bathroom. The open-plan kitchen/dining/family space is designed for contemporary living, featuring modern fittings and ample natural light. Additional features such as a separate dining room and utility room enhance functionality, while the garage provides secure parking and storage. The property benefits from a private garden, ideal for outdoor activities and relaxation.
Local Amenities
Located within the CB3 1SE area, the property is close to several highly regarded schools, including The Leys Primary and Nursery School and Coleridge Community College, making it suitable for families. Cambridge Station provides excellent rail connections to London and other major cities. Local amenities include Waitrose supermarket for daily shopping needs, Abbey Pool and Gym for fitness activities, and Cherry Hinton Hall Park offering green space and recreational facilities. A variety of cafes and restaurants nearby add to the vibrant community atmosphere.
Estimate Calculator
Mortgage Calculator
Purchase Costs
Monthly Costs & Income
Mortgage Calculator
Purchase Costs
Monthly Costs
International Suitability
Good OpportunityInternational Buyer Calculator
Purchase Costs (Non-UK Resident)
Monthly Costs & Income
Key Considerations for International Buyers
Investment Analytics
Key metrics for investors & buyersProperty Value Projection
Based on 1.0% annual growthMonthly Rental Income
Based on 3.8% annual growthFloorplans
Ground Floor

Ground Floor
First Floor
Second FloorLocation
Commute Time Planner
Location Scores
Future Developments Nearby
Loading location insights...
Similar Properties
Explore More
Latest Insights & Guides
Expert advice on buying new build homes, market trends, and property investment
Plumbing and Heating Snagging in New Build Homes
A detailed guide to spotting plumbing and heating defects in your new build home, covering boiler issues, radiator balan...
Read moreFirst-Time Buyer Stamp Duty Relief on New Builds Explained
A complete guide to first-time buyer stamp duty relief on new build homes in England and Northern Ireland — covering cur...
Read moreHow to Avoid Overpaying for a New Build Home: Fair Value Analysis, Developer Pricing Decoded, Land Registry Research, Comparable Sales Methods, and Down-Valuation Strategies
A data-driven guide to assessing whether a new build home is fairly priced. Learn how developer pricing actually works i...
Read more
