
About This Property
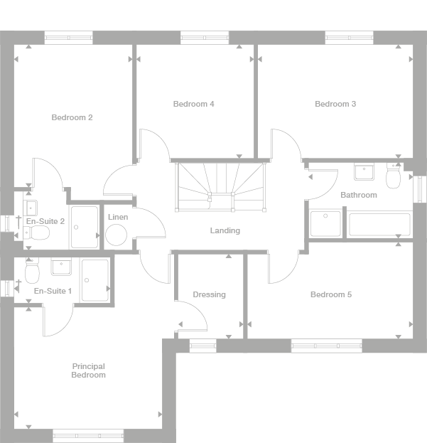
Discover what makes this home specialThe Denford is a spacious and elegant detached family home situated in the heart of the TS11 8LB area, near Thornaby-on-Tees in North Yorkshire. This property offers five well-proportioned bedrooms, including a principal bedroom with a dressing area and two en-suite bathrooms, providing ample space and privacy for a growing family. The ground floor features a large open-plan kitchen, dining, and family area, complemented by a separate lounge and utility spaces, ideal for both entertaining and everyday living.
Located in a peaceful residential neighbourhood, The Denford benefits from excellent connectivity to nearby towns and cities, including Middlesbrough and Stockton-on-Tees, with easy access to local amenities such as schools, parks, and shopping facilities. The property also boasts a double garage and a well-maintained garden, making it a perfect blend of comfort, convenience, and style for modern family life.
Property Features
This detached home is designed to offer both luxury and practicality. The five bedrooms include a principal suite with a dedicated dressing room and two en-suite bathrooms, ensuring privacy and convenience. The ground floor's open-plan kitchen, dining, and family area creates a bright and inviting space for family gatherings and entertaining guests. Additional features such as a utility room, cloakroom, and double garage enhance the functionality of the home, while the garden provides outdoor space for relaxation and play.
Local Amenities
The Denford is located near Thornaby-on-Tees, offering access to a range of local amenities. Education needs are well served by nearby schools including Thornaby Academy and St Patrick's RC Primary School, both highly regarded in the area. For shopping and leisure, residents can visit Teesside Park Shopping Centre, which features a variety of retail outlets, restaurants, and entertainment options. Outdoor enthusiasts will appreciate the proximity to Thornaby Community Gardens and local parks, while the Thornaby Leisure Centre provides facilities for sports and fitness. The Green Dragon Pub offers a traditional local dining experience, adding to the community feel.
Estimate Calculator
Mortgage Calculator
Purchase Costs
Monthly Costs & Income
Mortgage Calculator
Purchase Costs
Monthly Costs
International Suitability
Moderate OpportunityInternational Buyer Calculator
Purchase Costs (Non-UK Resident)
Monthly Costs & Income
Key Considerations for International Buyers
Investment Analytics
Key metrics for investors & buyersProperty Value Projection
Based on 5.0% annual growthMonthly Rental Income
Based on 7.9% annual growthFloorplans
Ground Floor
Location
Commute Time Planner
Location Scores
Future Developments Nearby
Loading location insights...
Similar Properties
Explore More
Latest Insights & Guides
Expert advice on buying new build homes, market trends, and property investment
Budgeting Beyond Your Deposit for a New Build Home
A detailed breakdown of every additional cost first-time buyers face when purchasing a new build — from solicitor fees a...
Read moreUnderstanding CIL and Section 106 on New Build Developments
Comprehensive guide to the Community Infrastructure Levy and Section 106 planning obligations on new build developments ...
Read moreSetting Up Broadband, Media, and Tech in Your New Build
A comprehensive guide to setting up broadband, smart home tech, TV, and media systems in your new build home, including ...
Read more

