
About This Property
Discover what makes this home specialThe Skywood is a spacious detached family home located in the residential area near TS11 8LB, close to Thornaby in the Teesside region. Offering four well-proportioned bedrooms including a principal bedroom with an en-suite, this property is ideal for families seeking comfort and convenience. The ground floor features a large lounge, a modern kitchen with dining space, and a utility area with a WC, providing practical living spaces for everyday needs. The attached garage adds valuable storage and parking options.
Situated in a well-connected area, The Skywood benefits from proximity to local schools, shops, parks, and transport links. Thornaby train station is within easy reach, offering direct connections to Middlesbrough and Newcastle, making commuting straightforward. The property is set in a community-oriented neighbourhood with good access to amenities and green spaces, making it attractive for both homeowners and investors alike.
Property Features
This detached home boasts four bedrooms, including a principal bedroom with an en-suite bathroom, providing privacy and comfort. The ground floor is designed for family living with a spacious lounge and an open kitchen-dining area that opens to the garden. A utility room with WC adds convenience, while the attached garage offers secure parking and extra storage. The layout maximizes natural light and space, making it a versatile home for families or professionals.
Local Amenities
The Skywood is located in a well-served area with essential amenities close by. Thornaby Train Station is approximately 1.2 miles away, providing excellent rail links to Middlesbrough and beyond. Local schools such as Thornaby Primary and St. Patrick's RC Primary offer good educational options for families. Shopping needs are met by nearby Tesco Superstore and various local shops. For recreation, Preston Park and Thornaby Leisure Complex provide green space and sports facilities. A range of restaurants and cafes in the vicinity add to the community feel and convenience.
Estimate Calculator
Mortgage Calculator
Purchase Costs
Monthly Costs & Income
Mortgage Calculator
Purchase Costs
Monthly Costs
International Suitability
Good OpportunityInternational Buyer Calculator
Purchase Costs (Non-UK Resident)
Monthly Costs & Income
Key Considerations for International Buyers
Investment Analytics
Key metrics for investors & buyersProperty Value Projection
Based on 5.0% annual growthMonthly Rental Income
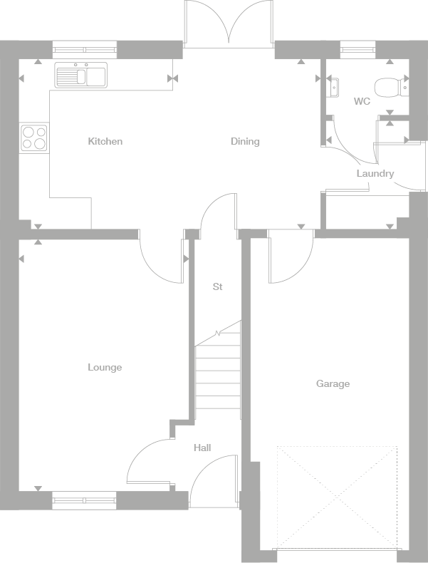
Based on 7.9% annual growthFloorplans
Ground Floor
Location
Commute Time Planner
Location Scores
Future Developments Nearby
Loading location insights...
Similar Properties
Explore More
Latest Insights & Guides
Expert advice on buying new build homes, market trends, and property investment
New Build Mortgage Affordability: How Lenders Calculate What You Can Borrow, Stress Tests Explained, and How to Maximise Your Budget
A complete guide to new build mortgage affordability in the UK — how lenders calculate borrowing capacity using income m...
Read moreNew Build Homes in Newcastle: Area Guide and Developments
Explore new build homes in Newcastle upon Tyne with our in-depth area guide. Covering Jesmond, Gosforth, Quayside, Great...
Read moreHow New Build Conveyancing Differs from Resale: What Your Solicitor Does Differently and Why It Matters
New build conveyancing is fundamentally different from buying a resale property. From contract packs and NHBC warranties...
Read more

