









/bm-bowland-external-003.jpg)
/alderney-gf-plan.jpg)
/alderney-ff-plan.jpg)

About This Property
Discover what makes this home specialAlderney is a spacious and modern detached family home located in the desirable market town of Longridge, PR3 2RG. Offering four well-proportioned bedrooms and three bathrooms, including an en-suite, this property is ideal for growing families or those working from home, with a dedicated work-from-home space in the lounge. The ground floor boasts a large kitchen/breakfast/family room with direct access to the garden, a formal dining room, and a bright lounge, providing ample space for both relaxation and entertaining.
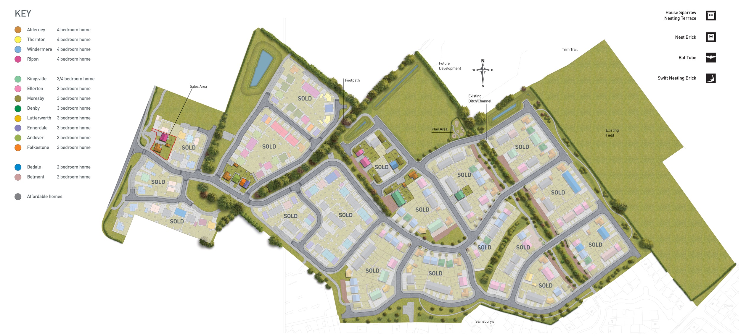
Situated on plot 33, the property enjoys a south-west facing rear garden that benefits from excellent afternoon and evening sunlight, perfect for outdoor living. The location offers a balanced lifestyle with good local amenities, schools, and transport links, including proximity to Longridge Railway Station and easy access to Preston city centre. This home combines comfort, convenience, and style in a thriving community setting.
Property Features
This Alderney home stands out with its south-west facing garden that captures plenty of natural light, enhancing the living spaces throughout the day. The en-suite bathroom adds privacy and convenience to the master bedroom, while the dedicated work-from-home nook in the lounge caters to modern lifestyle needs. The spacious kitchen/breakfast/family room is the heart of the home, ideal for family gatherings and entertaining guests. Additional features include a formal dining room, detached garage, and ample off-street parking, making it a practical and comfortable family residence.
Local Amenities
The property benefits from proximity to highly regarded schools such as Longridge Primary and Longridge High School, making it a great choice for families. Local amenities include a Sainsbury's supermarket for convenient shopping, Longridge Library for community resources, and recreational options like Longridge Golf Club and several local parks. The nearby Longridge Railway Station provides access to Preston and beyond, supporting easy commuting and travel. This combination of amenities ensures a well-rounded lifestyle for residents.
Estimate Calculator
Mortgage Calculator
Purchase Costs
Monthly Costs & Income
Mortgage Calculator
Purchase Costs
Monthly Costs
International Suitability
Excellent OpportunityInternational Buyer Calculator
Purchase Costs (Non-UK Resident)
Monthly Costs & Income
Key Considerations for International Buyers
Investment Analytics
Key metrics for investors & buyersProperty Value Projection
Based on 1.8% annual growthMonthly Rental Income
Based on 5.2% annual growthFloorplans
Ground Floor
/alderney-gf-plan.jpg)
Ground Floor
First FloorSite Plan

Location
Commute Time Planner
Sun Path & Natural LightAI generated - Estimated
Room-by-Room Light Analysis
Location Scores
Future Developments Nearby
Loading location insights...
Similar Properties
Explore More
Latest Insights & Guides
Expert advice on buying new build homes, market trends, and property investment
New Build Interior Design Trends for 2026
A comprehensive UK guide to the interior design trends shaping new build homes in 2026. Covers the shift from cool greys...
Read moreSaving for a New Build Deposit: First-Time Buyer Strategies
Discover proven strategies for saving your new build deposit as a first-time buyer, from Lifetime ISAs and government sc...
Read moreThe 50 Most Common Snagging Issues in New Build Homes (and Which Ones the Developer Must Fix)
A categorised guide to every common new build defect — from hairline cracks to faulty drainage. Each issue rated by seve...
Read more
/003-bm_centurianvillage_leyand_ext_alderney_4bed_whitedoors_lowres.jpg)
