
About This Property
Discover what makes this home specialFordwood is a spacious detached family home located in the semi-rural outskirts near the village of Shepshed, Leicestershire. Offering four bedrooms and three bathrooms, including a principal bedroom with en-suite facilities, this property blends modern living with countryside tranquility. The well-designed floorplan features a large kitchen/dining area, a separate lounge with garden access, and a convenient laundry room, making it ideal for families seeking comfort and functionality.
Situated in a peaceful neighborhood with easy access to local amenities and transport links, Fordwood provides a perfect balance between rural charm and connectivity. The property benefits from a generous plot, private garden, and ample natural light throughout, creating a welcoming and relaxing home environment. Its proximity to Loughborough and Leicester offers residents access to vibrant city life while maintaining a quiet retreat.
Property Features
This detached home boasts four well-proportioned bedrooms, including a principal bedroom with an en-suite bathroom, providing privacy and convenience. The spacious kitchen and dining area is perfect for family meals and entertaining guests, while the separate lounge offers a comfortable space for relaxation. Additional features include a laundry room and a guest WC on the ground floor. The property sits on a sizeable plot with a private garden and parking facilities, enhancing its appeal for family living.
Local Amenities
Fordwood is located near Shepshed village, which offers essential amenities such as primary and secondary schools including Shepshed Primary School and Iveshead School, supermarkets like Tesco Express, and local pubs and restaurants. The nearby town of Loughborough provides a wider range of shopping, leisure, and healthcare facilities. Several parks and green spaces are accessible within a short drive, promoting outdoor activities. Public transport options include local bus services connecting to Loughborough and surrounding areas.
Estimate Calculator
Mortgage Calculator
Purchase Costs
Monthly Costs & Income
Mortgage Calculator
Purchase Costs
Monthly Costs
International Suitability
Moderate OpportunityInternational Buyer Calculator
Purchase Costs (Non-UK Resident)
Monthly Costs & Income
Key Considerations for International Buyers
Investment Analytics
Key metrics for investors & buyersProperty Value Projection
Based on 1.7% annual growthMonthly Rental Income
Based on 4.8% annual growthFloorplans
Ground Floor

Ground Floor
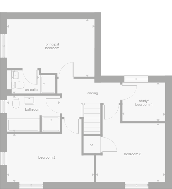
First FloorLocation
Commute Time Planner
Location Scores
Future Developments Nearby
Loading location insights...
Similar Properties
Explore More
Latest Insights & Guides
Expert advice on buying new build homes, market trends, and property investment
Rent to Buy Schemes and New Build Properties
Rent to Buy offers a unique route to homeownership by letting you rent a new build at a subsidised rate while saving for...
Read moreLandscaping and Garden Costs for New Build Properties
A comprehensive guide to landscaping and garden costs for UK new build homes. Covers turfing, patios, fencing, planting,...
Read moreNew Build Homes in Southampton: Area Guide and Developments
Find new build homes in Southampton with our comprehensive area guide. Explore Ocean Village, Portswood, Chandlers Ford ...
Read more/003-bm_centurianvillage_leyand_ext_alderney_4bed_whitedoors_lowres.jpg)

